Maison de la Plage - Extension

Servance, France

Das über 20-jährige Holzhaus am Weiher auf der Hochebene beim Hameua de la Longue Raie soll durch einen einfachen Eingriff erweitert werden. Ein turmartiger Aufbau ermöglicht den Rückzug in die Baumkronen. Eine neue Terrasse als Oberdeck bietet einen freien Blick über die Weite des Plateau der „Mille Étangs“.

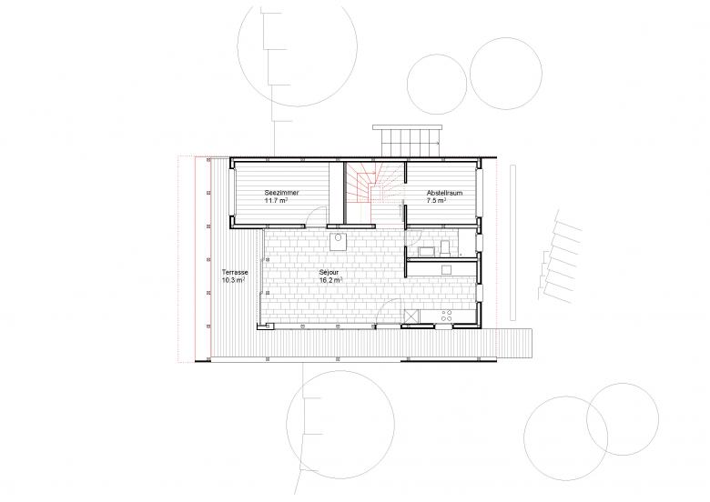
Grundriss Erdgeschoss
Grundriss Obergeschoss
Längsschnitt
Ansicht West
Ansicht Nord
Año
2022

Otros proyectos de Rothenfluh & Partner Architekten 

Erlenmatt, Cooperative d'Atelier, Atelier 2.02
Basel
Projektwettbewerb Dorfzentrum
Pfaffnau LU, Switzerland
Punkthaus Holzsystembau
Hellikon
Wohn- und Pflegezentrum Lippenrüti
Neuenkirch, Switzerland
Projektwettbewerb Geissenstein
Luzern, Switzerland