Projektwettbewerb Dorfzentrum

Pfaffnau LU, Switzerland

Der Entwurf für den Neubau für die Gemeindeverwaltung und die Raiffeisenbank, sowie vier grosszügige Wohneinheiten, basiert auf der Idee eines kompakten, leicht geknickten Baukörpers, der sich in seiner Ausrichtung neutral zur Kantonsstrasse verhält, also keine unnötige Zeilenbebauung vorsieht…

Situationsplan
Grundriss Erdgeschoss
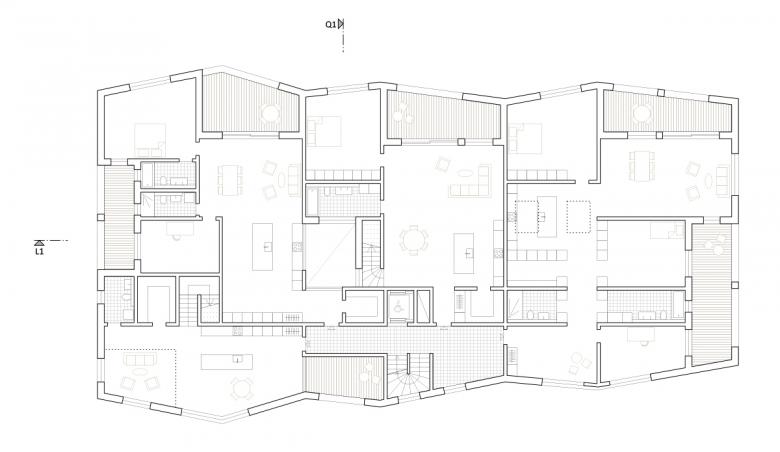
Grundriss 2. Obergeschoss
Querschnitt
Längsschnitt
Ansicht Süd-Ost
Ansicht Nord-West
Año
2021

Otros proyectos de Rothenfluh & Partner Architekten 

Erlenmatt, Cooperative d'Atelier, Atelier 2.02
Basel
Punkthaus Holzsystembau
Hellikon
Wohn- und Pflegezentrum Lippenrüti
Neuenkirch, Switzerland
Projektwettbewerb Geissenstein
Luzern, Switzerland
Kulturzentrum BOA
Luzern, Switzerland