Punkthaus Holzsystembau

Hellikon
Schlafzimmer zum Garten

Das Holzhaus am Steilhang weisst einen äusserst kleinen Fussabdruck auf. Durch eine Split-Level Lösung erschlossen, steht das offene Gebäudeinnere für Transparenz. Die Gebäudehülle besteht aus einer einschichtigen, massiven Holzkonstruktion.

Dachaufsicht mit Umgebung
Ansicht Süd-Ost
Ansicht Nord-West
Querschnitt
Wohnzimmer
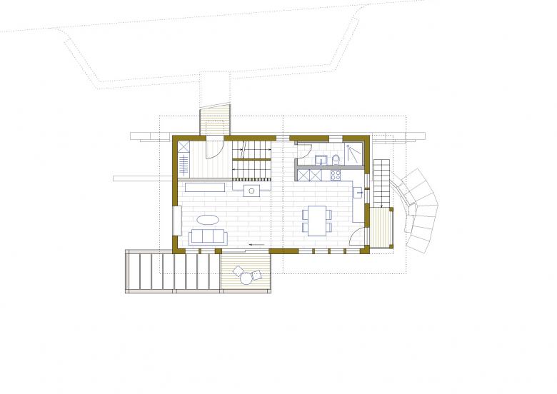
Grundriss Erdgeschoss
Eingangssituation
Längsschnitt
Innenansicht Obergeschoss
Año
2021

Otros proyectos de Rothenfluh & Partner Architekten 

Erlenmatt, Cooperative d'Atelier, Atelier 2.02
Basel
Projektwettbewerb Dorfzentrum
Pfaffnau LU, Switzerland
Wohn- und Pflegezentrum Lippenrüti
Neuenkirch, Switzerland
Projektwettbewerb Geissenstein
Luzern, Switzerland
Kulturzentrum BOA
Luzern, Switzerland