Casa entre palios
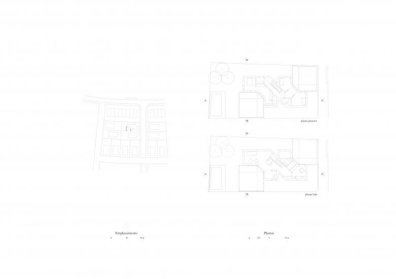
Una casa de dos plantas amoldada entre dos palios. Esta es la respuesta al conflicto habitual entre un deseo –disfrutar de los atributos espaciales una vivienda aislada- y el planeamiento –parcelas pequeñas y separación mínima a lindes de 3m-. La posibilidad de instalar elementos ligeros en el espacio no edificable es el resquicio de la ordenanza que será motor de proyecto.
La geometría de la planta libera dos salas exteriores de unos 40m², que incorporan la separación obligatoria. Una pieza media entre la calle, la entrada y la cocina, funcionando como vestíbulo, aparcamiento o lugar de celebraciones informales. La otra, como sala intermedia que permite extender con amparo la actividad del salón al exterior.
Son espacios configurados por una estructura metálica con toldos replegables, que mejoran el comportamiento climático del edificio. Ante esta arquitectura liviana, la casa es compacta, de muros de carga. Se repite un único formato de ventana perfectible, a excepción de las corredizas que maximizan la apertura de la planta baja.
La escalera, dispuesta en diagonal en el centro, organiza la casa en dos cuerpos capicuados en C. Cada parte abraza un palio con una fachada achaflanada. La mayoría de ventanas se abren aquí, permitiendo una visión en diagonal que otorga profundidad visual y resguardo de los vecinos. La geometría y disposición de las aperturas permite disfrutar de distintos tipos de luz en una misma habitación y ver la propia casa a través de las ventanas.
- Ano
- 2020
- Cliente
- Private
- Equipa
- Xevi Rodeja, Clàudia Calvet, Thommy Parra, Sara Palmada, Sergi Jiménez, Jordi Comino
- Aparellador
- Jesús Bassols
- Cálculo estructural
- Blázquez Guanter
- Project Management
- Cercle Gespromat
- Constructor
- David Construccions i Restauracions









