Ágora
Edificio de servicios en la ciudad deportiva del Morrot
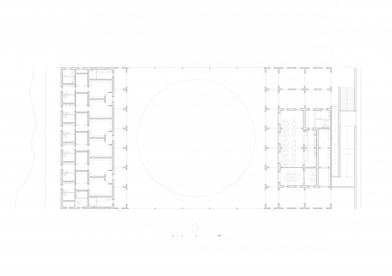
Una plaza cuadrada, definida por dos porches y abierta a los campos de fútbol. Este es el centro de la "ciudad deportiva" del Morrot en Olot. Es también la respuesta a las contradicciones entre el uso y el emplazamiento: un polígono industrial y una calle de acceso casi sin aceras.
La plaza conecta visualmente con los elementos geográficos naturales, el perfil de los montes que confinan la comarca. Al mismo tiempo, se aparta de las fábricas y de la calle transitada por camiones. El conjunto se asienta sobre una plataforma horizontal. Una interrupción en este basamento da inicio a un recorrido de entrada complejo y gradual: cancel, escaleras y rampa, porche a tres alturas, para desembocar de forma tangencial en el espacio central.
Los pabellones son gemelos pero no son iguales. Comparten perfil y porches, pero mantienen diferencias derivadas de la posición y el uso: uno está destinado a vestidores y el otro, a recepción, cafetería y servicios. Su volumen escalonado se ajusta tanto a las proporciones de la plaza como a la organización interna.
Todo es estructura. Atendiendo al reducido presupuesto (620€/m2), se invierte en aquello más trascendente: la activación de un lugar común, el volumen generoso de los espacios interiores y la entrada de luz natural. En este sentido, la construcción con muros portantes de bloque de mortero es sencilla y de fácil ejecución. Su lógica interna define la caligrafía de la obra y pauta la medida de las estancias.
La pareja de pabellones que se miran viste un escenario para cultivar uno de los valores más preciados del deporte base: la sociabilización.
- Ano
- 2017
- Cliente
- Ajuntament d'Olot
- Equipa
- Xevi Rodeja, Jordi Moret, Paula Alejandro Vázquez, Mariona Planiol Molist, Thommy Parra Villarreal, Sara Palmada, Jesús Bassols Geli
- Cálculo estructural
- Lluís Guanter Feixas (Blázquez-Guanter)
- Proyecto de instalaciones
- Lluís Parés Massa (Servicio de Ingenieria Sobirana Parés)
- Proyecto de instalaciones
- Lluís Parés Massa (Servicio de Ingenieria Sobirana Parés)
- Arquitecto técnico
- Albert Casademont (Colomer-Rifà)















