Zentrum für medizinische Forschung
Auf der Grundlage des 1998 eingereichten Beitrags für den EU-weiten Wettbewerb für Architekten & Investoren entstand auf dem Gelände des Klinikums Mannheim für die Fakultät für klinische Medizin das Zentrum für medizinische Forschung (ZMF).
Das ZMF stellt eine zentrale Einrichtung der Fakultät dar und dient der fachübergreifenden Forschungsförderung am Klinikum Mannheim. Es unterstützt interdisziplinäre, patientenorientierte, tierexperimentelle und zellmolekularbiologische Forschung. Der Schwerpunkt der medizinischen Forschung in den hochinstallierten Laboren liegt bei den Krankheitsbereichen Krebs und Diabetes.
Eine Analyse für den Neubau des ZMF ergab als günstigsten Standort die Flächen nördlich des Altbaus Ost. Nach Wegfall der Apotheke kann die Gebäudestruktur in einem 2. Bauabschnitt nach Norden sinnvoll weiterentwickelt werden. Die großen Grünflächen mit ihrem wertvollen Baumbestand bleiben weiterhin erhalten.
Typologisch gliedert sich das Gebäude analog der Hauptnutzungen: der zweigeschossige, gläserne Labortrakt "schwebt" über der Bibliothek. Abgelöst durch die verglaste Eingangshalle bildet der verklinkerte Seminar - und Verwaltungsriegel eine viergeschossige Dominante.
Ein Steg, sowie ein unterirdisches, vollautomatisches Transportsystem verbindet den Neubau mit den bestehenden Klinikgebäuden, in denen sich bereits Forschungsflächen befinden.
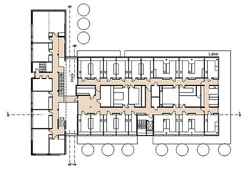
Der Hauptzugang des Gebäudes erfolgt über die dreigeschossige Eingangshalle. Von hier aus erreicht man im Erdgeschoss die publikumsintensiven Bereiche, wie den großen Seminarraum und die medizinisch wissenschaftliche Bibliothek mit Galerie. Die Labore sind in zwei Ebenen über der Bibliothek im dreigeschossigen Baukörper angeordnet. Bei den technisch intensiv ausgestatteten Laborgeschossen der Gentechniksicherheitsstufe 1+2 ist eine Strahlenschutzabteilung integriert. Der in Nordsüdrichtung gelegene Massivriegel enthält Seminarräume, Verwaltungs- und Diensträume. Stege, Treppen, Glasaufzug, galerieartige Flure und zur Halle hin offene Pausenzonen in der Eingangshalle verwandeln das Erschließungsgelenk im Zusammenwirken mit der warmtonigen Farbgebung zu einem kommunikativen Ort. An den großen östlichen Wandflächen der Halle ist Kunst am Bau in Form einer dreiteiligen Skulpturengruppe von Thomas Rentmeister, Köln, platziert. Die biomorphen Formen kontrastieren mit der Geometrie des Gebäudes und werden durch den natürlichen Lichteinfall in Szene gesetzt.
Die Reduktion auf wenige, aber prägende Materialien - wie Klinker/Glas im Seminar- bzw. Verwaltungsriegel, Sichtbeton/Glas in der Bibliothek und Metall/Glas im Laborbereich unterstreicht die klare Baukörperkonzeption und vermittelt die typologische Gliederung der unterschiedlichen Nutzungen nach außen. Form und Materialität gehen auf die denkmalgeschützte Umgebungsbebauung ein ohne diese zu kopieren. Anstelle kleinteiliger Verklinkerung wurde eine vorgehängte Klinkerfassade im Euroformat gewählt, die ihre Funktion als optisch anspruchsvoller und beständiger Wetterschutz in Form einer vorgehängten Schicht in der Detailausbildung und in der Eingangshalle zeigt. Durch die transparente Ausbildung des Erdgeschosses und der Eingangshalle wirkt das Gebäude zum Park hin durchlässig. Bis in die Detailplanung und -ausbildung wurde darauf geachtet, dass die entwurfsbesitimmenden Überlegungen wie Einfachheit, Funktionalität und Reduzierung auf das Wesentliche durchgehalten wurden.
1. Spatenstich
16. Juli 1999
Richtfest
14. Juli 2000
Baufertigstellung
05. April 2001
Bruttorauminhalt
23.480 m³
Nutzfläche
3.314 m²
Hauptnutzfläche
3.132 m²
Gesamtkosten
11.000.000 EUR
Auszeichnung
Beispielhaftes Bauen Mannheim 1991-2001
Presse
Deutsches Architektenblatt 6/2002
- 年
- 2001
- チーム
- Christine Schädler, Detlev Becker, Birgit Bölter
- Kunst am Bau
- Thomas Rentmeister




