Zentrallager Württembergisches Staatstheater

Stuttgart, ドイツ
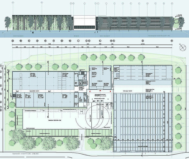
Ansicht, Lageplan
図面 © Schädler & Zwerger Architekten GmbH

3. Rang, EU-weiter offener Architekten- und Investorenwettbewerb

Es soll ein Zentrallager BRI = ca. 135 000 m³ mit Betriebshof und Transportmitteln errichtet und finanziert werden. Das Zentrallagergebäude besteht aus einem 3-geschossigen konventionellen Lager, einer Montagehalle mit Brückenkrananlage und einem Kulissenlager mit einer verfahrbaren Hochregalanlage auf einer Grundstücks-fläche von ca. 19.170 m². Grundlagen für die schlüssel-fertige Abwicklung ist u.a. eine Leistungsbeschreibung mit Leistungsprogramm und ein Bauerrichtungs- und Finanzierungsvertrag.

Ansicht, Grundriss
図面 © Schädler & Zwerger Architekten GmbH
2005

Schädler & Zwerger Architekten によるその他のプロジェクト 

Berufsakademie Schwenningen
Villingen-Schwenningen, ドイツ
Zentrum für medizinische Forschung, 2.BA
Mannheim, ドイツ
Mensa mit Cafeteria für das Studierendenwerk
Villingen - Schwenningen, ドイツ
Sportpark Wendlingen
Wendlingen
Zentrale der Christoffel-Blindenmission
Bensheim, ドイツ