Bürgerhaus und Wohnungsbau Stuttgart-Möhringen

Stuttgart, ドイツ
Visualisierung
© ARGE

3. Rang, begrenzt offener Architekten- und Investorenwettbewerb

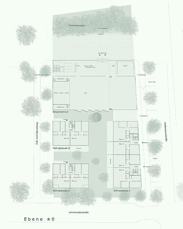
Mit der städtebaulichen Neuordnung des Bahnhofsareals gewinnt der Filderbahnplatz als eines der Zentren Möhringens erheblich an Bedeutung und Qualität. Das neue Bürgerzentrum bildet die südliche Platzkante und wird zur Dominante am Platz. Seine markante Form und Gestaltung wird zum Identität stiftenden Signet. Das transparente Foyer öffnet sich zum öffentlichen Raum, Musik- und Sitzungssäle in den beiden Obergeschossen orientieren sich auf den Platz. Die vorgeschlagene Platzgestaltung unterstützt den repräsentativen Charakter des Gebäudes.

Die ergänzende private Nutzung beschränkt sich auf den südlichen Bereich des heutigen Postparkplatzes. Drei Wohngebäude arrondieren das Stadt-Karree und fügen sich maßstabsgerecht in die umgebende Bebauung ein. Der lang gestreckte Baukörper an der Holdermannstraße bildet ein adäquates Gegenüber für das bestehende Wohn- und Geschäftshaus, die beiden Punkthäuser reagieren auf die kleinteilige Wohnbebauung entlang der Leinenweberstraße. Die großzügige, zusammenhängende Grünfläche zwischen den Gebäuden dient als Orientierungsraum und sorgt für eine hohe Wohnqualität. Die Tiefgaragen für beide Nutzungen werden über eine gemeinsame Rampe von der Holdermannstraße aus erschlossen.

BÜRGERZENTRUM

Der Haupteingang führt in das Foyer mit Café und Garderobe. Foyer, Saal und Küche liegen funktional optimal auf einer Ebene mit dem Vorplatz. Von der Küche aus können nicht nur beide Saalteile, sondern – für Stadtteilfeste - auch die Platzfläche versorgt werden. Der Saal orientiert sich nach Süden und Osten. Zusätzlich sorgen zwei verdunkelbare Oberlichtaufsätze für eine gleichmäßige Ausleuchtung.

Zwei Seiteneingänge dienen als Küchenanlieferung und als Neben- bzw. Künstlereingang. Sitzungs-, Musik- und Werkräume sind über das Foyer, aber auch über den Nebeneingang erschlossen und getrennt nutzbar. Räume in den Obergeschossen können zur Vorbereitung vor dem Bühnenauftritt genutzt werden.

Der prägnante, eigenständige Baukörper besteht aus zwei, vertikal gegeneinander verschobenen Volumina, dem Kopfbau mit Sitzungsräumen und Musiksälen und dem Saalbau. Die Fassadengestaltung lebt von der spannungsvollen Komposition opaker Wand- und großformatiger, bündig eingesetzter Fensterflächen. Die Gestaltung der verputzten Wände spielt einerseits mit dem Ort – dem Gegenüber der markanten Kastanien auf dem Platz – und andererseits mit der Kulissenthematik eines Veranstaltungsraumes. Mit einfachen Mitteln entsteht eine einprägsames und singuläres Erscheinungsbild.

ERGÄNZENDE NUTZUNG

Die ergänzende, private Nutzung beschränkt sich auf einen nachfrage- und standortgerechten Geschosswohnungsbau. Die Gebäude sind als einfache, kubische Baukörper konzipiert. Ihre gestalterische Zurückhaltung unterstützt die herausgehobene Stellung des Bürgerzentrums innerhalb der Gesamtanlage. Die plastische Ausformung der Fassaden ist auf Einschnitte im Bereich der Eingangsbereiche und Loggien reduziert. Zwei- Drei und Vier-Zimmerwohnungen sind als klassische Zweispänner organisiert. Die Grundrisse sind hoch flexibel und damit den jeweiligen Raumbedürfnissen anpassbar. Die Tragstruktur beschränkt sich auf Außenwand, Wände der zentralen Sanitärkerne und Stützen. Den Erdgeschosswohnungen sind Terrassen, den Wohnungen im obersten Geschoss Dachgärten zugeordnet. Sämtliche Wohnungen sind barrierefrei erschlossen.

AUßENANLAGE

Im Norden, Osten und Westen reichen die Platz-, Straßen- und Wegeflächen bis an die Gebäudekanten, um dem Ort eine dem Zentrum Möhringens angemessene Urbanität zu verleihen. Das Ensemble aus Kastanienreihe, Bürgerzentrum und Wohngebäuden wird durch die Flächen übergreifende Freianlagengestaltung gefasst.

Das trapezartig geformte Feld besteht aus drei Bändern: Die Platzbäume im Norden stehen in einer Rasenfläche. Der eigentliche Vorplatz, dessen Belag sich im Foyer fortsetzt, endet in einer „aufgefalteten“ Sitzbank. Die Grünfläche um die Wohngebäude im Süden ist leicht bewegt, um über der Tiefgarage auch Baumpflanzungen zuzulassen. Sie ist durch einen umlaufenden, Sitzbord einfasst, der nur im Bereich der Erschließungswege unterbrochen ist und den privaten vom öffentlichen Raum trennt.

begrenzt offener Architekten- und Investorenwettbewerb
3. Preis

Beurteilung durch das Preisgericht
Auszug
"Die Verfasser schlagen ... eine schlüssige klare Gliederung des Grundstücks vor.
Der Saalbau am Filderbahnplatz besetzt die südliche Platzkante und bezieht so den öffentlichen Raum durch ein quergelagertes Foyer mit ein ...
Der rückwärtige Teil des Grundstücks wird mit drei Einzelhäusern besetzt, die auf die unmittelbare städtebauliche Umgebung Bezug nimmt und somit den Maßstab des Quartiers sehr gut trifft..."

Lageplan
© ARGE
Schnitt
© ARGE
2005
Architekten
ARGE Schädler & Zwerger Architekten GmbH, Leinfelden-Echterdingen, Glück+Partner Freie Architekten BDA, Stuttgart

Schädler & Zwerger Architekten によるその他のプロジェクト 

Berufsakademie Schwenningen
Villingen-Schwenningen, ドイツ
Zentrum für medizinische Forschung, 2.BA
Mannheim, ドイツ
Mensa mit Cafeteria für das Studierendenwerk
Villingen - Schwenningen, ドイツ
Zentrallager Württembergisches Staatstheater
Stuttgart, ドイツ
Sportpark Wendlingen
Wendlingen