Schulanlage Saatlen

Zürich
Ecke Saatlenstrasse - Tramstrasse

.

Pausenplatz
Foyer Sportanlage - Mensa - Mehrzweckraum
Bewegungszone SKB
Stadtplan
Strukturmodell
Situation
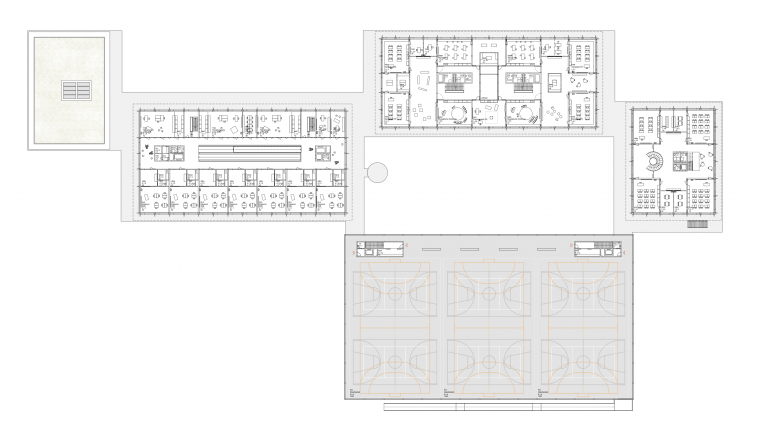
Erdgeschoss
1. Obergeschoss
2. Obergeschoss
Ansicht SEK - Schnitt PRIM - Ansicht SKB - Schnitt KDG
Ansicht KDG - Schnitt SKB - Schnitt Schwimbad - Ansicht PRIM - Schnitt SEK
Schnitt Turnhalle - Pausenplatz - Primarschule
Konstruktion
2020
チーム
Landschaft: Claudia Wolfsenberger

Leuppi & Schafroth Architekten によるその他のプロジェクト 

Langsamverkehrsbrücke
Bern-Wankdorf, スイス
Mehrfamilienhaus Haldenstrasse
Zürich, スイス
Rheinfall Besucherzentrum
Laufen-Uhwiesen, スイス
Limmatsteg mit Promenadelift
Baden / Ennetbaden, スイス
Erweiterung Kantonsschule Rychenberg und im Lee
Winterthur, スイス