Erweiterung Volksschule Stapfenacker
Das Primarschulhaus Stapfenacker in Bern gilt als vorbildliches Beispiel des „Neuen Bauens“ der Dreissigerjahre. Aus der Sicht der Projektverfassenden ist die Anlage ganzheitlich und in sich abgeschlossen. Deshalb kommt eine Erweiterung nur als ein neues eigenständiges Gebäude in Frage. Die gewünschte funktionale Verbindung vom bestehenden Schulhaus zum Neubau wird mit einem kurzen unterirdischen Korridor entsprochen.
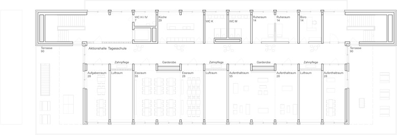
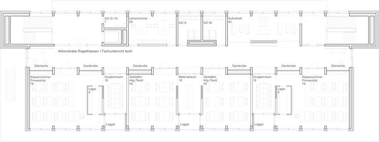
Die Erweiterung der Volksschule Stapfenacker folgt dem strukturellen Aufbau der bestehenden Schulanlage, indem die Reihung der Räume an linearen Korridoren sowie das Verhältnis von Raumkörnung und Baukörper in ähnlicher Weise weiterentwickelt werden.
Die konsequente Ausrichtung aller Hauptnutzungen nach Südwesten ist eine Folge der städtebaulichen Setzung des Volumens, das dem Primat eines störungsfreien Schulbetriebes verpflichtet ist. Ebenso ist die gewollte Zuwendung zu den reservierten Freiräumen der Basisstufe und der Tagesschule direkt umgesetzt.
Die Nutzungsanalyse des dreigliedrigen Raumprogramms mit Basisstufe, Tagesschule und Regelklassen mit Werkräumen lässt eine vertikale Schichtung als eine angemessene Option erscheinen. Das dreidimensionale Erschliessungssystem kann die hohen Anforderungen an das autarke Funktionieren der auch zeitlich unterschiedlich genutzten Raumbereiche gut erfüllen.
Bei einer Schichtung in die Höhe wird selbstredend auch die überbaute Fläche minimiert. Damit kann im Nahbereich mehr vom dringend benötigten Aussenraum angeboten werden.
Das kompakte dreigeschossige Gebäude bedeutet gegenüber der bestehenden Schulanlage eine etwas höhere Dichte. Das vorliegende Projekt soll dahingehend überzeugen, dass sich das Neubauvolumen und der Bestand gegenseitig mit Respekt begegnen.
Zur bestehenden Schulanlage zeigt der neue Erweiterungsbau einen breiten Rücken, was den grossen Pausenhof gegen Südwesten räumlich abschliesst. In dieser kubisch leicht höheren Gebäudezone befinden sich nebst den beiden Erschliessungsanlagen weitere wichtige Nebenräume wie Toilettenanlagen und Kleinräume sowie die architektonisch gefasste Solarnutzung auf dem Dach.
- 年
- 2013
- Project Status
- 建設中






