Wohnanlage
Acht individuelle Eigentumswohnungen
Ausgangslage
Auf einem grösseren Grundstück an der Hubstrasse 24 in Bassersdorf stand ein bescheidenes giebelständiges Zürcher Riegelhaus mit einer längeren Gartenhalle, die den prächtigen Pflanz- und Obst-Garten gegen die Strasse hin begrenzte und einfasste. Das in den 50er Jahren durch den Erbauer und dessen Familie selbst bewohnte Gebäude erbrachte seinen Nutzen über zwei Generationen.
Die beiden Geschwister und Erben haben mit ihren Familien die Region nie verlassen und wollten im dritten Lebensabschnitt wieder zu Ihren Wurzeln zurückkehren. Da das elterliche Haus zu klein und auch baufällig war, wurde beschlossen, das Grundstück einer erweiterten Nutzung zuzuführen. Nebst einem selbstgenutzten Mehrgenerationenhaus sollte auch Wohnraum für zusätzliche Familien angeboten werden. Der Eigenbedarf umfasste etwa die Hälfte der Nutzung, was eine Gliederung der Baumasse in zwei Gebäude nahelegte.
Projektierung
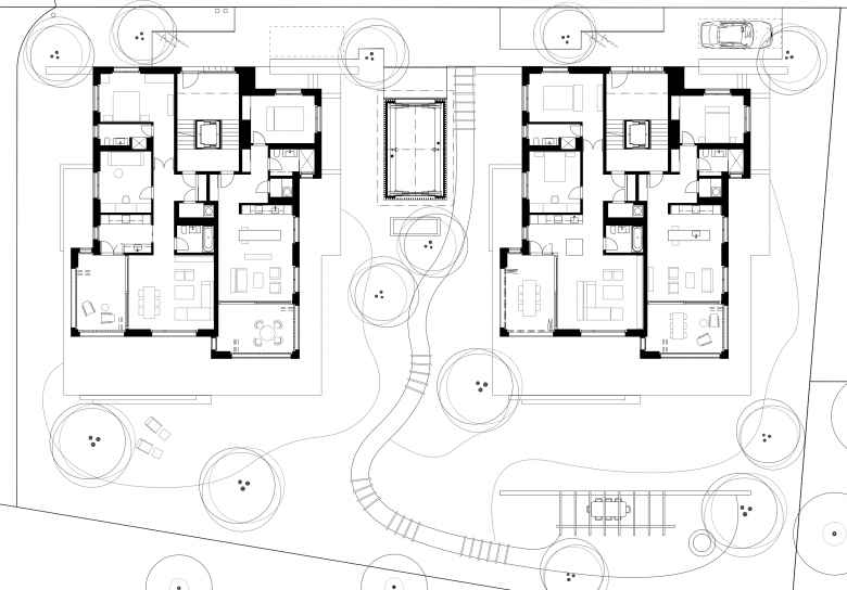
Die Erschliessung des gegen Südwesten abfallenden Grundstückes erfolgt von oben ab der Hubstrasse, weshalb eine Setzung der beiden Gebäude am oberen Rand entlang der Strasse naheliegend ist. Mit der maximalen Höhenlage konnte die Aussicht optimiert und der Grünraum gegen Südwesten gross gehalten werden.
Die Wohnanlage mit zwei Zwillingsgebäuden auf einer gemeinsamen Unterniveau-Garage sind das Ergebnis von austarierten Ansprüchen bezüglich den Wohnqualitäten wie Besonnung, innere und äussere Sichtbezüge oder schlicht den Wohnungsgrössen.
Mit einem eingehausten Autoaufzug zwischen den Wohnhäusern konnte die beträchtliche Niveaudifferenz zwischen Hubstrasse und Einstellhalle ohne Einschnitte im Gelände - und damit verbunden - auch eine unnötige Bodenversiegelung vermieden werden.
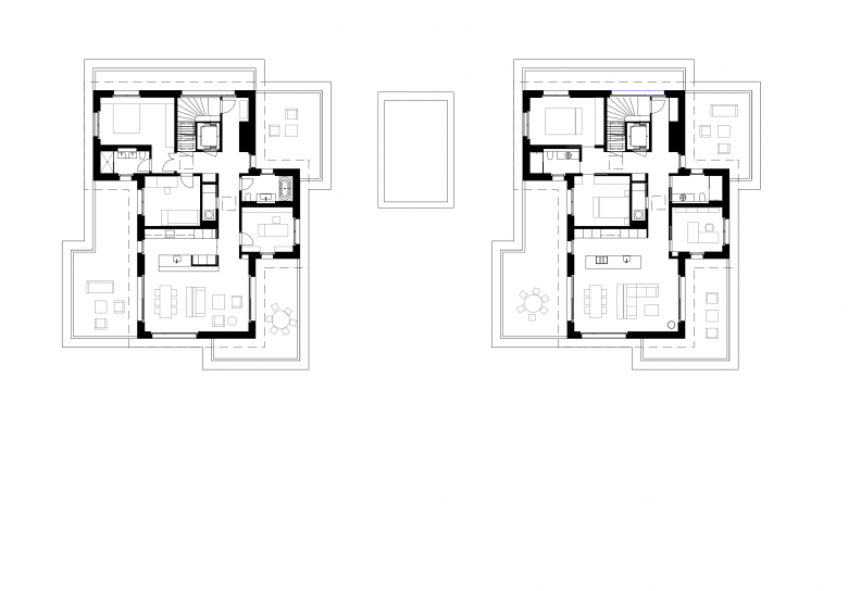
Die beiden Gebäude beinhalten je vier Wohnungen unterschiedlicher Lage und Grösse, die über ein zentrales Treppenhaus erschlossen werden. Das Angebot reicht von grossen Gartenwohnungen über kleinere und mittlere Geschosswohnungen mit wetter-unabhängigen Vier-Jahreszeiten-Zimmer bis zu den Attikawohnungen mit allseitigen Terrassen-Decks. Alle Wohnungen sind stark mit dem intensiv bepflanzten Grünraum in Wechselwirkung.
Die öffentlichen und privaten Ansprüche an eine Verdichtung der bestehenden Bauzonen bedingen eine kompakte und knappe Bemessung aller Räume. Dieser relativen Enge entgegen wirkt ein grosszügiges Belichtungskonzept mit häufig zweiseitig besonnten Räumen und mit Nasszellen, die direkt über der Fassade natürlich belichtet werden.
Realisierung
Die kompakte maximale Wohn-Nutzung über Terrain bedingt eine tief im Gelände liegende Einstellhalle für die gesetzlich geforderten Auto-, Velo- und Motorradstellplätzen sowie für den Bedarf an Kellerräumen und Technikräumen. Die tiefe Baugrube begünstigt den Einsatz eines Autoliftes.
Die beiden Zwillingsbauten stehen auf diesem Kellersockel und durchdringen sich im Bereich des Erschliessungskern mit den hangseitig gelegenen Nebenräumen.
Die insgesamt acht Wohnungen mit den zwei Einliegern weisen Grössen von 1 ½ - bis zu 5 ½ - Zimmer auf, was eine entsprechende Lebens- oder Nutzungsvielfalt ermöglicht.
Die Typisierung reicht von mittelgrossen Gartenwohnungen, über kleinere Geschosswohnungen mit integrierten Vier-Jahreszeiten-Zimmer bis zu grosszügigen Attika-Wohnungen mit grossen Dachterrassen.
Die Dimensionierung, die Ausstattung und die Organisation der Wohnungen entsprechen einem mittleren Eigentumsstandard, weshalb von Beginn weg eine Stockwerk-begründung vorgesehen war; unabhängig davon, ob eine Vermietung oder ein Verkauf im Vordergrund stehen.
Die Bautechnik und Materialisierung entspricht dem aktuellen Stand der Technik und der Normen; allerdings mit einem grossen Bekenntnis zu einem angenehmen Wohnklima.
Dazu gehören die massive Bauweise zum Schutz gegen Fluglärm, die optimale Dämmung und die kontrollierte Wohnraumbelüftung ebenso wie die Verwendung von nachhaltigen und gesunden Baustoffen.
Der Primärenergiebedarf ist minimiert worden. Beheizt werden die Wohnflächen mit Wärmepumpen, die die Umweltenergie in der Aussenluft nutzen.
- 年
- 2022
- Project Status
- 竣工済
- クライエント
- privat
- Bauingenieure
- WaltGalmarini AG
- Landschaftsarchitekten
- noa landschaftsarchitektur
- Elektroingenieure
- Marquart AG
- HLS-Ingenieure
- 3-Plan AG
- Bauleitung
- site achitects














