Schloss Laufen Nordtrakt
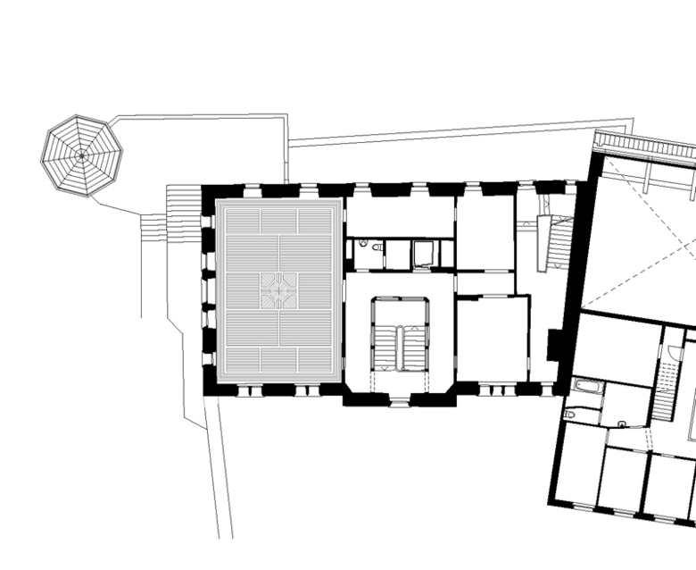
Der Nordtrakt ist einer der ältesten Gebäudeteile der Schlossanlage und gleichzeitig nicht wegzudenkender Bildbestandteil unzähliger historischer und touristischer Abbildungen. Im Erdgeschoss und Obergeschoss lädt nun ein Historama ein zum Thema Rheinfall. Der gesamte Gebäudeteil ist vollumfänglich erneuert worden. Insbesondere wurde die Fassade, der Bleulersaal und das Haupttreppenhaus in enger Zusammenarbeit mit der Denkmalpflege restauriert.
Ein zweites eingefügtes Treppenhaus erlaubt die Ausstellung als Rundlauf zu organisieren und gleichzeitig können gesicherte Fluchtwege bereitgestellt werden. Eine an das Haupttreppenhaus angelagerte neue Kernzone, umfasst einen behindertengängigen Aufzug sowie Technik- und Nebenräume. Im Dachraum ist die Lüftungszentrale untergebracht, die über die Kernzone und Unterdecken alle Ausstellungsräume mit temperierter Frischluft versorgt.
- 年
- 2010
- Project Status
- 竣工済





