Mudrastraße
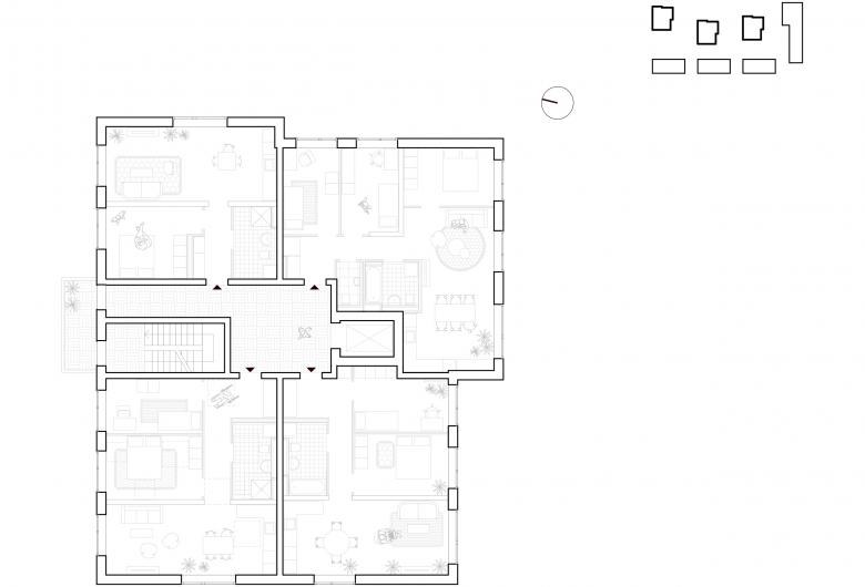
Insgesamt 182 Wohneinheiten, verteilt auf 7 Mehrfamilienwohnhäuser, entwickelte unser Büro für die degewo im Ortsteil Lankwitz. Die Bebauung soll sowohl für Familien als auch Senioren und Studierende gleichermaßen attraktiv sein. Ein Schwerpunkt liegt auf barrierefreien, seniorengerechten Wohnungen für ein möglichst selbstbestimmtes Wohnen. Aufseiten der Malteser- und der Emmichstraße reihen sich die Häuser in Riegelbebauung aneinander. Nach innen entsteht Quartier-Charakter durch vielseitig gestaltete Außenanlagen rund um freistehende Punkthäuser. Alle Wohnungen sind so orientiert, dass sie von einer optimalen Besonnung profitieren.
- Année
- 2024
- Project Status
- Construit
- Client
- degewo















