Feuchtwangerweg
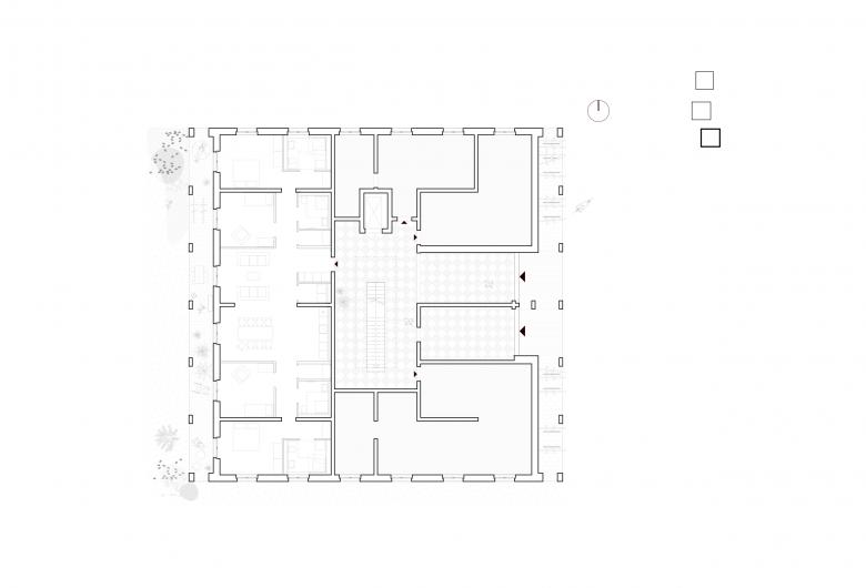
In einem heterogen bebauten Gebiet in der südlichen Gropiusstadt verwirklichten BFA mit BSL zeitgemäßes, offenes Wohnen. Drei herrschaftliche Kuben reihen sich wie Perlen an einer Kette aneinander und staffeln sich von Norden nach Süden ab. An zwei Seiten sind alle Häuser mit einem Balkonregal verkleidet, das mit bis zu 10 Meter langen Balkonen viel nutzbaren Außenraum bietet. Die Relevanz des Außen setzt sich in den umgebenden Gemeinschaftsplätzen und
der Natur fort, die sanft um die Baukörper herum fließt. Die zentral eingesetzten Treppenhäuser laden mit ihrem offenen, lichten Patio-Charakter zu nachbarschaftlichen Begegnungen ein.
- Année
- 2019
- Project Status
- Construit
- Client
- degewo
- Arbeitsgemeinschaft
- Bernrieder · Sieweke-Lagemann Architekten











