Primarschule Riethüsli St.Gallen
- Architects
- Derendinger Jaillard Architekten
- Year
- 2012
- Auftraggeber
- Stadt St.Gallen
- Bauingenieur
- AF Toscano
- Haustechnik
- Martin Pletscher
- Bauphysik
- Bakus
- Wettbewerb
- 2012, 2. Preis
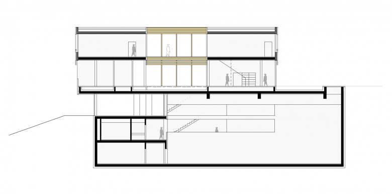
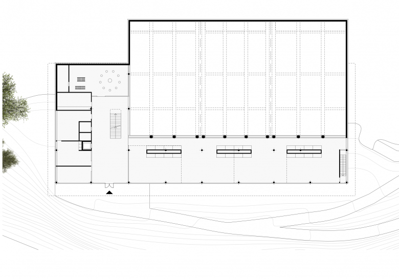
- Aufgabe
- Neubau mit 12 Klassenzimmern als Tagesschule, Bibliothek / Mediathek, Mensa, Mehrzweckraum / Aula, Doppelturnhalle, Kindergarten, Pausen- und Sportplätze
Related Projects
Magazine
-
-
Marunouchi Architecture Tour
Mitsubishi Jisho Design, Japan-Architects Curators | 20.02.2026 -
-













