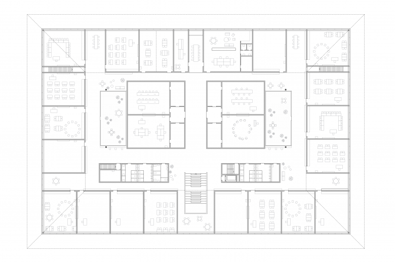
Schul- und Sportzentrum Champagne
- Architects
- Derendinger Jaillard Architekten
- Year
- 2020
- Auftraggeber
- Gemeinde Champagne, Waadt
- Bauingenieur
- Timbatec Holzbauingenieure
- Bauingenieur
- Schnetzer Puskas Ingenieure
- Wettbewerb
- 2020
- Aufgabe
- Neubau mit 18 Klassenzimmern, Betreuung, Dreifachturnhalle für Schul- und Vereinssport, Unterkunft für Sportler, Pausen- und Sportplätze
Related Projects
Magazine
-
-
Marunouchi Architecture Tour
Mitsubishi Jisho Design, Japan-Architects Curators | 20.02.2026 -
-










