Wohnpark Gisingen Haus E
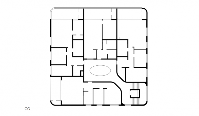
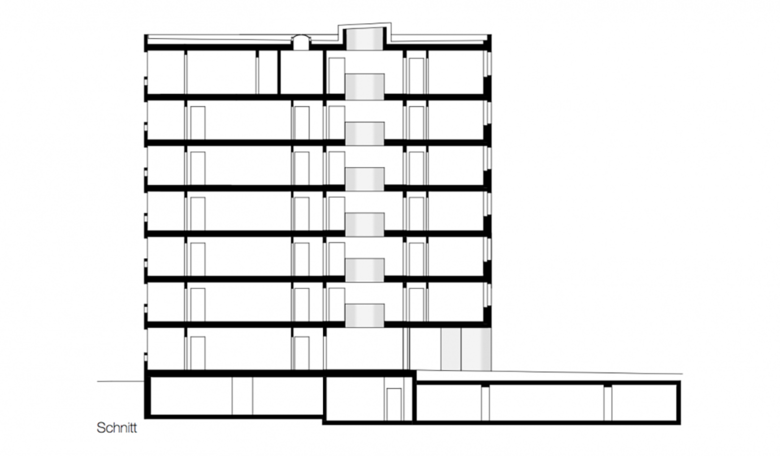
Alle Wohnungen im Haus E sind nach Südwesten orientiert. Das siebengeschossige Wohngebäude wurde als sogenanntes „Punkthaus“ - alle Wohnungen gehen aus von einem zentralen, Treppenhaus und Aufzug enthaltenden Raum - geplant. Es entsteht dadurch eine Halle, die sich über alle Geschosse zieht und über das Dach von oben belichtet wird. Die Ellipsenform des zentralen Luftraums und der Brüstung sorgt für die besondere Optik. Die farbigen Deckenuntersichten im Stiegenhaus und Zentralraum erzeugen je nach Blickwinkel spannende Kontraste. Die Abrundung der äußeren Gebäudeecken setzt sich im Inneren im Bereich des Stiegenhauses fort. Bei den Balkonen wurden die Brüstungen bewußt auf 70 Zentimeter Höhe reduziert und mit einem oberen Glasband versehen, um auch hier den Bezug zum Wasser und der umliegenden Bergwelt herzustellen.
- Year
- 2012
- Project Status
- Built
- Client
- Nägele Wohnbau
- Landschaftsarchitektur
- N. Piersantelli











