Mietwohnbau Hämmerleareal
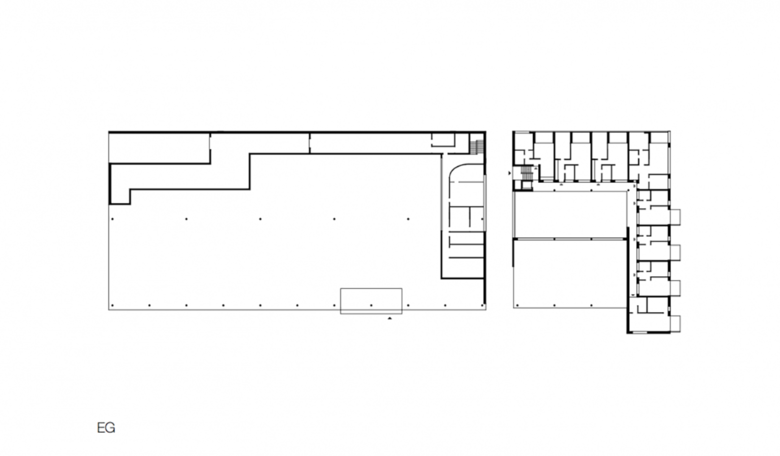
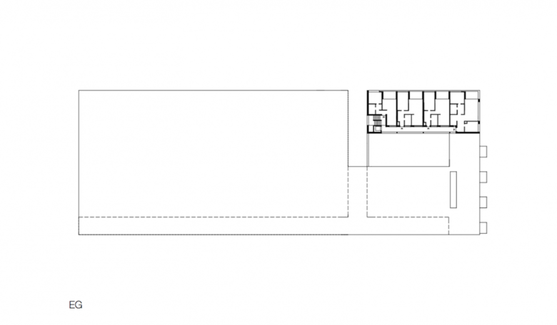
Ein neues Nahversorgungszentrum mit Supermarkt und Wohnbebauung sollte errichtet, die städtebauliche Neugestaltung des etwas 50.000 m² großen Hämmerle Areals gedacht werden. Der stimmungsvolle eingeschossige Textil-Industriebau (Spinnerei Hämmerle) aus vergangenen Zeiten im Norden, zwei unter Denkmalschutz stehende Villen mit drei Werkmeisterhäusern im Süden und im Westen der Fluss Ill stellt die einzubeziehende Situation dar. Der Neubau spannt den Zwischenraum zum Textilwerk als Platz auf und bezieht die spätere Umnutzung ein. Ein weit auslaufender Sockel beinhaltet Supermarkt und ein weiteres Diskontgeschäft. Direkt anschließend orientiert sich das siebenstöckige Wohnhaus zum Fluss. Ein Durchstich öffnet die Wegbeziehung zum projektierten Wohnbaugelände. Schwarzgraue Schiefer-Schindeln sind durchgehendes Fassadenmaterial. Um die Höhe des Supermarktes als Baukörper durchzuhalten erschließen sich vier Wohnungen ums Eck, über einen reizvollen Innenhof. Die weiteren fünf Stockwerke werden zu diesem Hof über offene Laubengänge erschlossen. Balkone oder Loggien geben den Kleinwohnungen Lebensqualität. Von den Architekten wird für die künftige Wohnbebauung ein Richtplan mit fünf unterschiedlichen Bautypen für insgesamt 300 Wohnungen vorgelegt
- Year
- 2007
- Project Status
- Built
- Client
- FM Hämmerle Holding AG







