Sleeping Lab · Arch
The project is located in Huangmuchang Village on the outskirts of Beijing. It is a two-story brick-concrete building, originally used as residential and office. The weather-beaten exterior walls and wind-blown eaves are eager to be refurbished and restored. Atelier d’More was commissioned to renovate this run-down building into a boutique hotel.
The architectural intention of creating a landscape – Given the lack of scenery in the surrounding environment, we decided to create an inward view and create an interesting private garden, which led to the idea of the enclosed courtyard space. Only a few viewing frame are opened on the south wall. In addition to the blue sky and white clouds, the chaos and noise are isolated from the wall. The large glass windows of the building actively introduce the scenery and light into the building, which becomes a part of the indoor space experience.
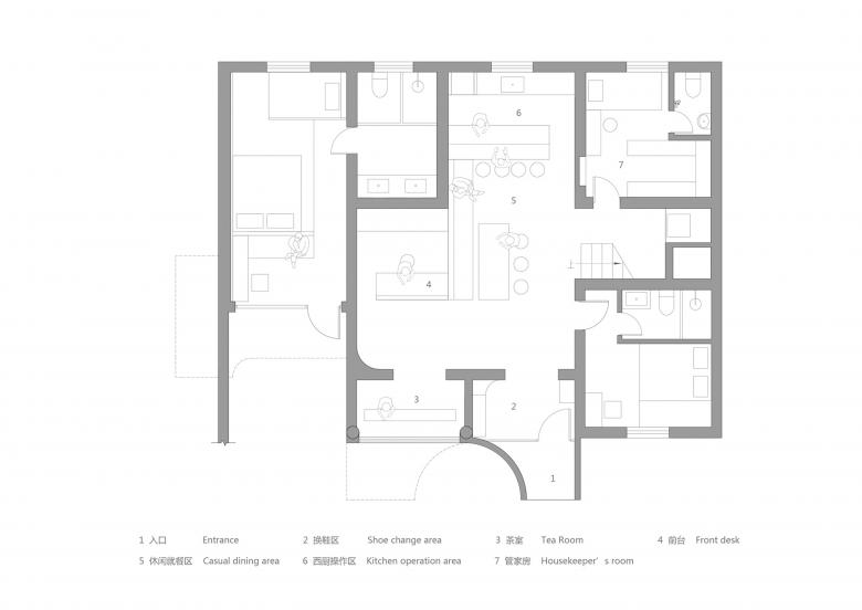
We divided the rectangular courtyard of 100 square meters into several small semi-enclosed courtyards, trying to create an inner courtyard environment. Each courtyard will have a small tree as the protagonist (since it is completed in winter, the tree has not been planted), an organic connection is formed between the courtyards. A series of interactions between tearoom, guest rooms and the courtyard are created under the multi-level space. When users enter the building, they can read the interior of the building in their own way and perspective, so the container function of the building is reflected. The shadow moves with the light, and the scenery changes with people, making the architectural space full of poetry.
Free flow – The design language of the architectural and interior is based on a quarter arc, which flows freely in the space with a rigorous attitude and increases the tension of the building by means of geometric composition. The outward extension of the building block on the facade is close to nature in a flowing posture, bringing the distance between architecture, nature and people closer. The white facade makes the building abstract and sculptural, through the rendering of white material, the boundary between the wall and the top is blurred. The flowing space and natural light blend together to bring people a pure experience and imagination space.
Assembling “Toy” – All the furniture in this project were designed by Atelier d’More, in fact, we have been engaged in the designing prefabricated assembled furniture for many years, different from the manufacturing industry, the traditional decoration industry automation process develops slowly, our concept of furniture assembly is equivalent of turning on automatic gears for construction, that the clients can even operate themselves. We regard this kind of assembling furniture as a big toy, making the boring construction work become a game, in which the workers and clients can enjoy the process. Many of the interior decorations can be assembled on-site with prefabricated components, which has been implemented in many of our projects. The application of this design method is very meaningful for low construction cost projects.
- Year
- 2022
- Project Status
- Built





















