Каменный ручей
Многофункциональный жилой комплекс.
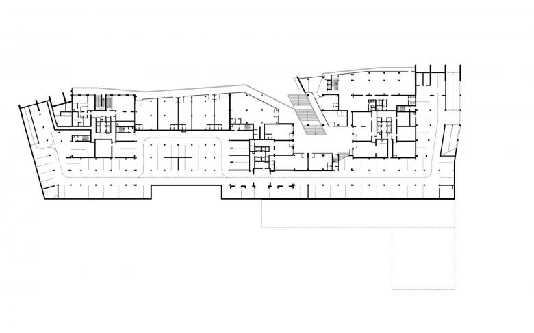
Участок лежит на подножии Уктусских гор откуда открывается вид на Нижнеисетский пруд. Активный рельеф участка определил террасное решение стилобата, а желание видов на пруд и лес – башенную типологию домов.
Через стилобат проходит «каньон» – пешеходная лестница, ведущая от автобусной остановки, на двор комплекса, к лыжной базе и лесопарку. На лестницу выходит двухсветный вестибюль, кафе, фитнес, салон красоты и другие коммерческие помещения.
Инфраструктуру дополняет муниципальный встроенный детский сад на 80. Групповые помещения садика занимают первые два этажа одной из башен и открываются во двор, где для них есть отдельные площадки. Кухня и хозяйственные помещения располагаются в стилобате и выходят на улицу.
Дворовое пространство максимально комфортно и разнообразно – гостевой двор-палуба с двухсветным вестибюлем; два жилых двора с детскими площадками; «набережная» с видом на озеро, идущая по краю стилобата; площадь жилого квартала с ёлкой и амфитеатром. Палисадники при квартирах первого этажа делают двор более уютным.
Параметры
Площадь участка – 1,9 га
Типология – башни
Количество надземных этажей – 28
Количество подземных этажей – 1
Полезная площадь – 70 400 м²
в том числе:
Площадь квартир – 44 700 м²
Коммерческие помещения – 6 500 м²
Подземная автостоянка – 19 200 м²
Количество квартир – 919
Средняя площадь квартиры – 48 м²
Плотность жилого фонда – 23 526 м²/га
Количество машиномест – 491
в том числе:
Под двором – 100 %
Объекты инфраструктуры – детский сад
- Any
- 2016
- Client
- Brusnika
- Equip
- Наталья Воронкова, Stanislav Belykh, Alexander Samarin, Olga Martynenko, Catherine Zharkova, Andrey Gushchin, Victoria Azarenkova, Natalia Cherepanova, Alena Markova, Catherine Udovik, Maria Pastukhova, Anna Sergeeva, Polina Isyanyulova, Anton Danilov, Ksenia Prince, Veronica Fomina, Natalia Isachenkova, Roman Davidov, Наталья Воронкова
- Эскизное и рабочее проектирование благоустройства:
- «Sztuka & Partners»






















