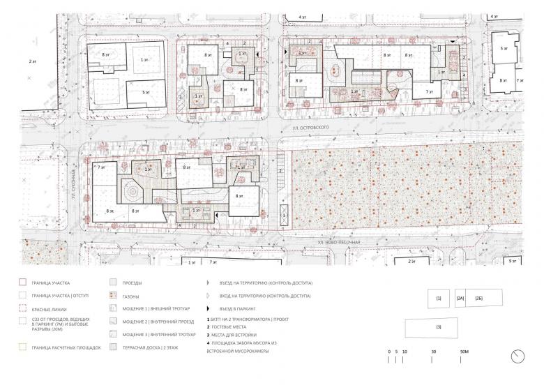
Центральные кварталы

Visualització © Архитектурное бюро «ОСА»

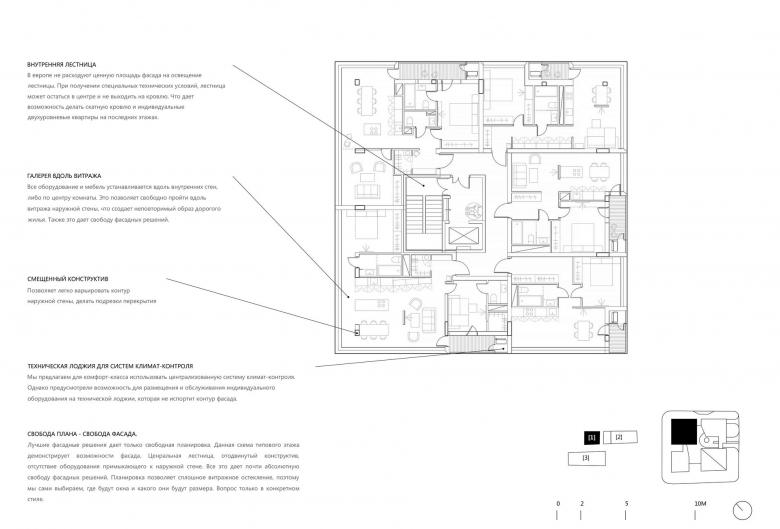
Кварталы в тихом центре большого города. Продолжают историческую для него тему квартальности, используя все ее положительные характеристики. При этом, формообразование, стиль фасадов, эстетика общественных пространств учитывают современные тренды в этой области недвижимости.

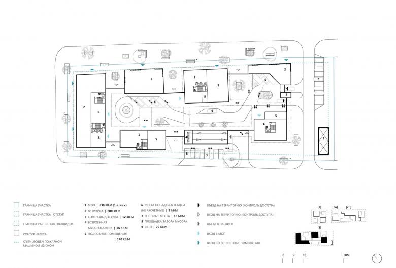
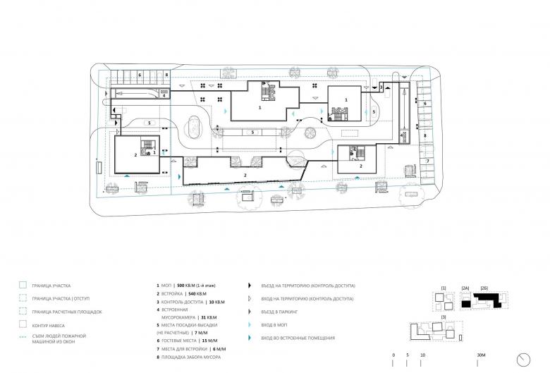
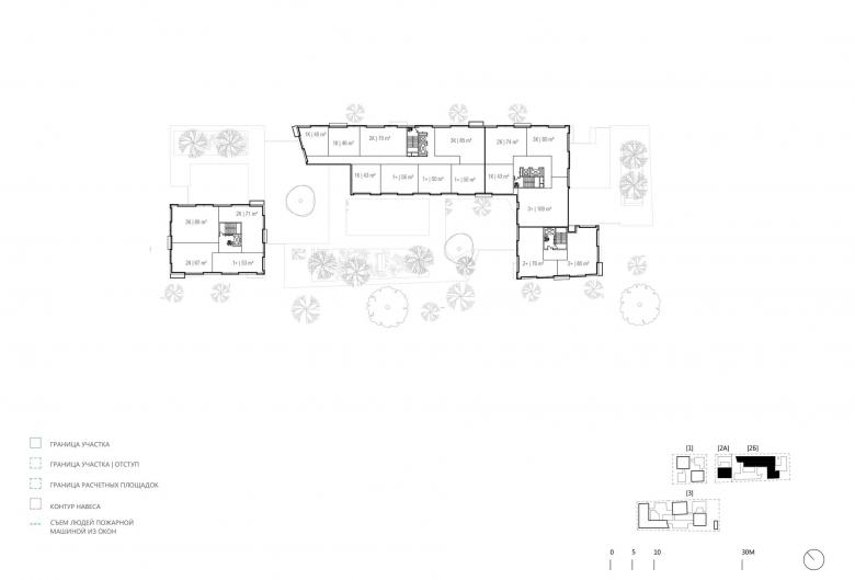
Параметры
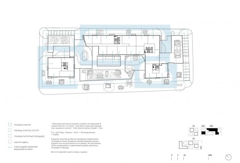
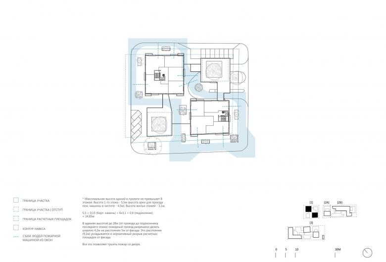
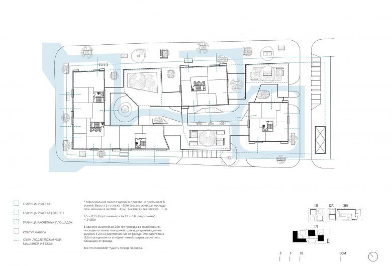
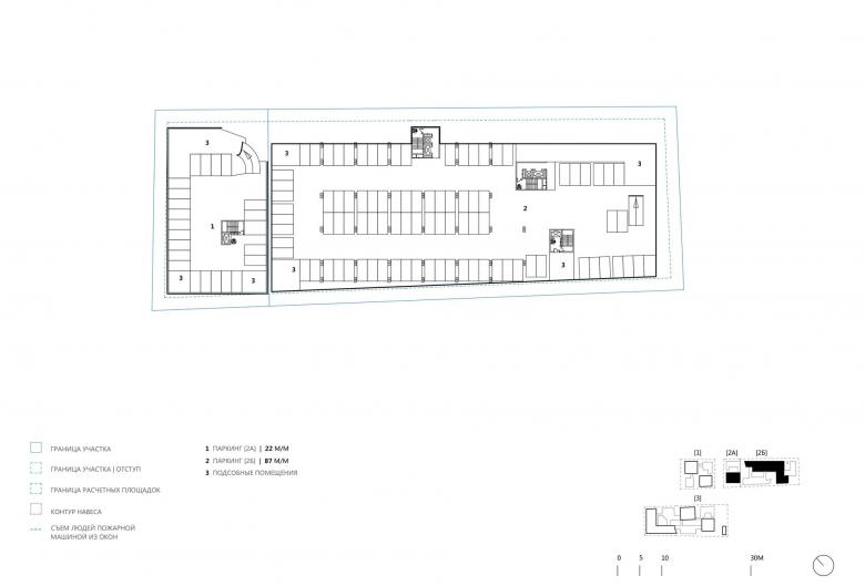
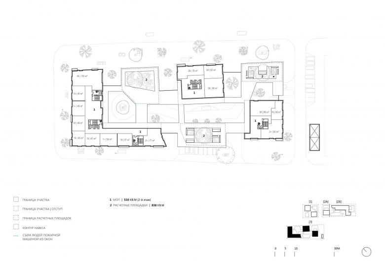
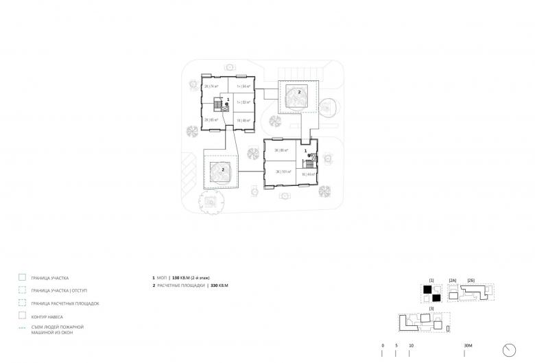
Площадь участка – 1,69 га
Количество надземных этажей – 7, 8
Количество подземных этажей – 1
Полезная площадь – 22 420 м²
в том числе:
Площадь квартир – 20 835 м²
Коммерческие помещения – 1 585 м²
Плотность жилого фонда – 12 328 м²/га
Количество машиномест – 345
в том числе:
Под двором – 100 %

Visualització © Архитектурное бюро «ОСА»
Visualització © Архитектурное бюро «ОСА»
Visualització © Архитектурное бюро «ОСА»
Visualització © Архитектурное бюро «ОСА»
Visualització © Архитектурное бюро «ОСА»
Visualització © Архитектурное бюро «ОСА»
Visualització © Архитектурное бюро «ОСА»
Visualització © Архитектурное бюро «ОСА»
Dibuix © Архитектурное бюро «ОСА»
Fotografia © Архитектурное бюро «ОСА»
© Архитектурное бюро «ОСА»
© Архитектурное бюро «ОСА»
© Архитектурное бюро «ОСА»
© Архитектурное бюро «ОСА»
© Архитектурное бюро «ОСА»
© Архитектурное бюро «ОСА»
Fotografia © Архитектурное бюро «ОСА»
© Архитектурное бюро «ОСА»
© Архитектурное бюро «ОСА»
© Архитектурное бюро «ОСА»
© Архитектурное бюро «ОСА»
Fotografia © Архитектурное бюро «ОСА»
© Архитектурное бюро «ОСА»
© Архитектурное бюро «ОСА»
© Архитектурное бюро «ОСА»
© Архитектурное бюро «ОСА»
© Архитектурное бюро «ОСА»
© Архитектурное бюро «ОСА»
Equip
Vasiliy Krapivin, Xenia Prince, Olga Mikhailenko

Altres projectes per ОСА 

Каменный ручей
Екатеринбург, Russia
Первомайская I
Татлин
Russia
Эверест
Екатеринбург, Russia
Новый центр Калининграда