Westlake University

600 Dunyu Road, Xihu District Hangzhou City, China
MP4 video, length: 01:14 min, format: 16:9
Video © © Tian Fangfang
Aerial view, Academic Core
Picture © © Tian Fangfang

Westlake University, established in 2018, is a new type of research university, a first in the history of modern China. It is both supported by public and private funding and a vanguard in the reform of the higher education system in China. It is striving to cultivate top talent, to make breakthroughs in basic research and innovation in cutting-edge technologies, and to foster human development through science and technology. Located in the west of Hangzhou, the campus houses state of the art academic facilities, laboratories, offices, sports facilities, canteens, and housing for an international body of students and faculty.
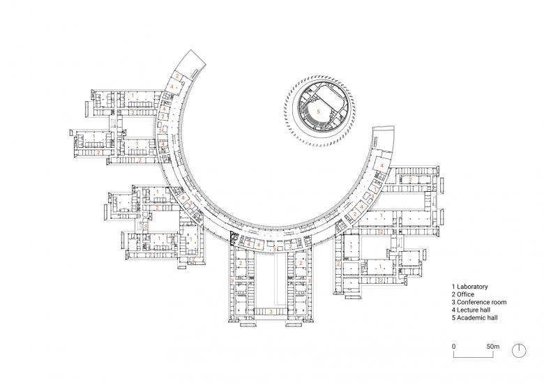
The design for the Westlake campus defines the site as a series of concentric rings that organize the campus both physically and conceptually: the Academic Core, the Water Loop, and the Living Loop.
The School of Science, the School of Engineering, the School of Life Sciences, and the School of Medicine are each housed in separate buildings. All of these buildings feature a modular, barshaped design and share the same distinctive precast concrete frame, while each façade is uniquely detailed with colorful accents and custom patterns. Bridges connecting the bars create a series of courtyards. The buildings are interlocked with the circular Academic Loop to promote connection and interdisciplinary exchange.
The intersections of the Loop and the institute buildings are where the shared spaces are located: on the ground floor, laboratories are available to students and researchers from various disciplines, while the upper floors contain auditoriums, seminar and meeting rooms as well as more informal areas such as cafés and exhibition spaces.
The Academic Loop is the dense intellectual and social core of the university. The dynamic, tripleheight space offers panoramic vistas through and into the buildings it connects. The design deliberately leaves the circular arc incomplete – evoking a sense of openness and possibility for future development.
At the center of the loop is the University’s central park—a beautiful garden for retreat, contemplation and socialization. Set amidst the garden is the Academic Hall, a large auditorium that serves as the formal venue for graduations and academic ceremonies, and regularly transforms into a lively space for concerts and cultural occasions.
The campus is encircled by a tranquil waterway. Twelve bridges connect the campus to the verdant Living Loop where freestanding residential buildings for students and faculty are located. Surrounded by shops, canteens, and sports facilities, the outer ring is a vibrant hub of private and social life.
The design of the campus is conceived from the center as a gravitational core. Rather than prioritizing short routes, it encourages and guides movement through the rings – each with its own character – offering diverse experiences, opportunities for inspiration, and vibrant exchange. A place where serendipitous encounters spark new ideas and ways of thinking.

Aerial view, from the south
Photo © © Tian Fangfang
Aerial view, from the north
Photo © © Tian Fangfang
Academic Core
Photo © © Tian Fangfang
Central garden, Academic Hall
Photo © © Tian Fangfang
Academic Hall
Photo © © Tian Fangfang
Academic Loop
Photo © © Tian Fangfang
Academic Loop
Photo © © Tian Fangfang
School of Science
Photo © © Tian Fangfang
School of Science, School of Engineering
Photo © © Tian Fangfang
School of Science
Photo © © Tian Fangfang
Faculty buildings, water loop
Photo © © Tian Fangfang
Faculty buildings
Photo © © Tian Fangfang
Water loop
Photo © © Tian Fangfang
Administration building
Photo © © Tian Fangfang
Student Activity Center
Photo © © Tian Fangfang
Library in the Student Activity Center
Photo © © Tian Fangfang
Central library and observation tower
Photo © © Tian Fangfang
Canteen
Photo © © Tian Fangfang
Sports Center
Photo © © Tian Fangfang
Presentation model, scale 1:100
Photo © © HENN
Presentation model, scale 1:100
Photo © © HENN
Presentation model, scale 1:100
Photo © © HENN
Concept Academic Loop
Drawing © © HENN
Concept masterplan
Drawing © © HENN
First floor plan Academic Core, original scale 1:500
Drawing © © HENN
First floor plan Academic Core, original scale 1:500
© © HENN
Third floor plan Academic Core, original scale 1:500
© © HENN
Third floor plan Academic Core, original scale 1:500
© © HENN
Circulation network Academic Loop
© © HENN
Ground floor plan Academic Core, original scale 1:1000
© © HENN
Masterplan, original scale 1:1000
© © HENN
Ground floor plan Academic Core, original scale 1:1000
© © HENN
Masterplan, original scale 1:1000
© © HENN
Section, Academic Hall, original scale 1:200
© © HENN
Cross section, Academic Loop, original scale 1:200
© © HENN
Section library with elevation observation tower, original scale 1:200
© © HENN
Year
2025
Client
angzhou Municipal Command Center for the Promotion of Westlake University Project Construction; Westlake-Universität
Team
Hans Funk, Georg Pichler, Yuchen Wang, Martin Henn, Leander Adrian, Lida Alibegovic, Phyllis Buschmeyer, Anna Cwik, Daniel da Rocha, Martina Fabre, Sahra Gehrke, Denise Gellinger, Tongtong Gong, Wei Guo, Katrin Jacobs, Rachna Kothari, Paul Langley, Peter Lee, Yuanhao Li, Sha Liao, Tu Ba Hoang Ly, Ayk Martirosyan, Janine Parvis, Jekaterina Porohina, Katrin Schiffelholz, Clemens Schiffer, Mostafa Seleem, Andre Serpa, Yuekang Shu, Kathrin Stamm, Tiffany Taraska, Yaxi Yang, Zhe Zhang, Jingyi Zhou
Local Design Institute (LDI)
UAD – The Architectural Design & Research Institute of Zhejiang University Co. Ltd.
Lighting consultant
RDesign International
Landscape consultant
WES LandschaftsArchitektur
Construction company
Shanghai Construction Group

Other Projects by HENN 

Merck Modular Building
Darmstadt, Germany
Vertical Farmhouse
Berlin, Germany
Natural Science Center II, University of Stuttgart
Stuttgart, Germany
Berlin Fire Department and Rescue Services Academy
Berlin, Germany
Medizinische Hochschule Hannover
Hannover, Germany