Brainergy Hub

Jülich, Germany
Atrium, upper floors
Visualization © HENN

The Brainergy Hub project located in Jülich is the centerpiece of a new innovation park for companies and start-ups dedicated to sustainable and renewable energy research, bioeconomy and digitalization. Designed as a striking rotunda structure, the new build functions as a social knowledge hub for Brainergy Park, embodying the transition to renewable energy and a green future. It is a pioneering example of modular timber-hybrid construction, making innovative use of materials, forms, and energy-efficient technologies.

Set within a vibrant park, the Hub is embedded in a diverse natural biotope that helps moderate the urban microclimate and mitigate the heat island effects of the surrounding buildings. A newly created lake serves as a retention basin for stormwater runoff from the broader site.

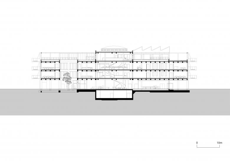
Its circular shape makes Brainergy Hub omnidirectional and links it to all neighboring buildings. Inside this circle, modular units form a pixelated cloud, which is enclosed by three rings of balconies on the upper floors. This structure allows for easy subdivision and a playful arrangement of interior and exterior spaces. The highly rational grid is accentuated by a large central atrium and four smaller courtyards that vary from double height to triple height, providing fresh air and daylight to employees throughout the building. The façade integrates innovative ‘breathing’ ventilation units that ensure high indoor air quality, heat recovery, and improved comfort.

The modular system includes spaces for several smaller companies whose employees can gather in communal areas located around the central atrium for co-working and informal interaction. A generous spiral staircase guides visitors through this communication space, while additional external staircases serve as shortcuts for employees and allow the office units to be accessed independently from the balcony rings. The top floor features rentable event spaces with a rooftop terrace. The Hub’s recessed ground floor establishes a striking north-south axis on the site that links to the lake in the north and to an orchard in the south.

Brainergy Hub uses a hybrid structure of timber and reinforced concrete demonstrating the potential of natural, low-carbon construction materials. Wooden columns and beams are intentionally left visible. Together with the interior wood paneling, they create a warm, natural atmosphere. At the same time, the interior design leaves its distinct mark using bold colors and large-scale typography.

The hub is connected to the low-ex network, a local district heating system that supplies the entire business park. Photovoltaic panels installed on the roof and façade generate energy – any surplus produced is stored in an on-site energy storage system for later use.

Throughout the design and planning process, the carbon footprint of the project was calculated and assessed in respect of both embodied and operational carbon. This data informed design decisions to keep the building’s environmental impact as low as possible.

View from the north
Visualization © HENN
View from the south, main entrance
Visualization © HENN
Foyer
Visualization © HENN
Office space
Visualization © HENN
Living Room, office unit
Visualization © HENN
Roof terrace, event space
Visualization © HENN
Open office space
Visualization © HENN
Concept model
Photo © HENN
Presentation model, original scale 1:100
Photo © HENN
Presentation model, original scale 1:100
Photo © HENN
Concept model
Photo © HENN
Presentation model, original scale 1:100
Photo © HENN
Interior design material collage
Photo © HENN
Site plan, original scale 1:1000
Drawing © HENN
First floor plan, original scale 1:100
Drawing © HENN
Ground floor plan, original scale 1:100
Drawing © HENN
Section, original scale 1:200
Drawing © HENN
Third floor plan, original scale 1:100
Drawing © HENN
Modularity
Drawing © HENN
Main axis
Drawing © HENN
Modularity and circularity of structural elements
Drawing © HENN
Support grid
Drawing © HENN
Interior design color concept
Drawing © HENN
Year
2027
Client
Brainergy Park Jülich GmbH
Team
Thomas Quisinsky, Dirk Breuer, Ona Forss, Silvia Forster-Golm, Frank Gebler, Lars Gilz, Justus Honigbaum, Rachna Kothari, Emiliano Lupo, Axel Mierisch, Anatolii Romanov, Michael Sadomskyj, Olha Todosiychuk, David Webb, Sam Weston, Cansu Yeni, Daniel Festag, Martin Henn, Alexandra Berger, Giovanni Betti, Sandra Dehli, Leticia Duque-Llerandi, Maciej Elert, Oliver Franke, Denise Gellinger, Lorenz Harzer, Marcin Kropidlo, Jan-Philipp Maiwald, Gencay Maurer, Fabian Reckers, Silvana Scheve, Mira Schröpfer, Ine Spaar, Nikitas Vrotsos
Structural engineer, building services
Buro Happold
Landscape
Latz + Partner
Fire protection
hhp Berlin
Building physics – thermal protection, acoustics, media planning
Müller BBM
Kitchen planning
K & P Planungsbüro GmbH
DGNB certification
Kempen Krause Ingenieure
façade
Schöne Neue Welt Ingenieure
IT technology
ComConsult
media planning
hmpartner
signage
Büro Uebele

Other Projects by HENN 

Merck Modular Building
Darmstadt, Germany
Vertical Farmhouse
Berlin, Germany
Natural Science Center II, University of Stuttgart
Stuttgart, Germany
Berlin Fire Department and Rescue Services Academy
Berlin, Germany
Medizinische Hochschule Hannover
Hannover, Germany