BESTSECRET
BESTSECRET, an online members-only club for luxury fashion, adds an office in the center of the Bavarian capital to its new headquarters in the Munich area. HENN translated the company’s identity as a platform for curated luxury brands into a corresponding interior design, creating a place that strengthens the brand’s identity while providing a pleasant, modern work environment for about 125 employees.
Situated on the newly developed iCampus at Ostbahnhof, the new BESTSECRET office is located in a seven-story new build designed by architectural firm LRO Lederer Ragnarsdóttir Oei. Facing the city center, this building occupies the site’s northernmost end. An urban axis opens a panoramic view across the Werksviertel and out of town all the way to the Alps appearing on the horizon.
Reduced and timeless in nature, the BESTSECRET brand aesthetic sets the stage for featuring upscale fashion brands in the digital space. The interior design conceived for the new headquarters toys with this idea to transform it into a tangible space using carefully selected colors, materials, and objects. A warm gray shade on the walls works in concert with exposed concrete ceilings and light gray seamless floors to create a neutral backdrop that makes the building the physical equivalent of the digital brand identity. Reflective and mirrored surfaces expand the space visually, while generously applied textile materials establish a reference to the world of fashion.
Contrasting textures and shapes – cool mirror surfaces versus warm wood, sturdy metal versus gentle, flexible textiles – lend a clear and coherent appearance to the interior space. The industrial appeal of raw surfaces such as architectural concrete and galvanized metal intriguingly contrasts with homely, custom-made wooden furniture that extends along the outer walls to incorporate small benches and shelves.
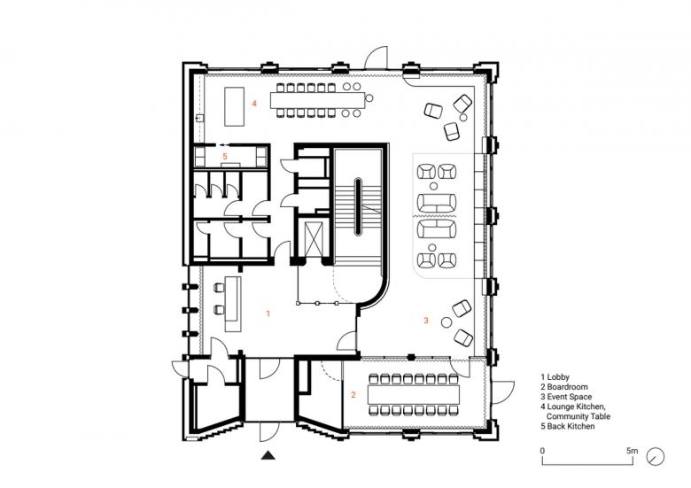
All floors are designed differently depending on their type of use, yet they are united by the principle of transparency and openness: Glazed walls create a continuous sense of space on each floor while allowing for a panoramic view from the building’s center as well. The boardroom is located on the ground floor, deliberately kept visible from outside and facing the city center. On the opposing side, the lounge kitchen features a large community table to provide a place to meet for employees from all floors.
On the upper levels, offices are divided into different zones, including communicative co-working spaces and contemplative think-tank rooms. Floor-to-ceiling curtains allow for flexible, even more granular zoning. Arranging the individual areas was a deliberate design decision: While the more open zones face the vibrant city center, the rooms designed for focused work are located on the quieter side of the building.
At the BESTSECRET office, HENN Interior designed a workspace that is imbued with the company’s identity while creating an inspiring atmosphere for employees and visitors alike.
- Year
- 2024
- Client
- BestSecret GmbH
- Team
- Katrin Jacobs, Yvonne Koll, Martin Henn, Alexandra Berger, Christiane Reichenbach, Kathrin Stamm
- Interior fitout / carpenter
- BES Brunold Holz und Design Manufaktur GmbH
- loose furniture
- designfunktion München GmbH
- Lighting planning
- lumen3
- Media technology
- Officemedia
















