White House - Renovation of Hutong House
White House - Renovation of Hutong House
Location: Dongcheng District, Beijing
Project Type: Residence
Project Phase: Built
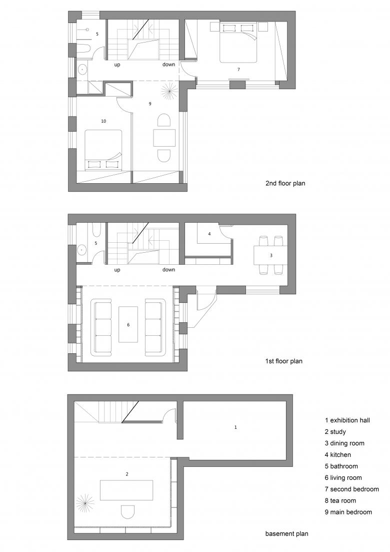
Renovation Area: 160 square meters
Designers: Han Wenqiang, Zhao Yang
Photographer: Wang Ning, Xia Zhi, Zhang Linhan
Author: Han Wenqiang
Project Introduction:
The grey brick house in the Hutong of Dongcheng District, Beijing was renovated into a residence for a young couple. This brick and concrete structured building is left by the previous owner. The house locates at the outermost of a small Hutong, there are another 5 householders inside. Due to the limitation of the privacy of the neighbors in the Hutong, the interior of the old house is closed and dark.
The designer's purpose is to improve the interior structure based on the conditions of the old building, to reshape a bright, transparent and clean atmosphere for the interior space, and to form an interesting contrast with the exterior appearance of the old block. While facing with the complex and trivial situation, the designer uses “white” as the fundamental color, and brings the space back into a pure and abstract initial state through demolishing and extending, and creates the feeling of a flowing space by taking advantage of the changing lights and outdoor views.
Part of the floor slabs of the original building have been cut off, through which the stairs are turned into a light beam that gets through all interior floors. The changeful natural light which reaches directly to each floor through the skylight brings the enclosed interior space to life. The 2cm steel stair treads and 5cm perforated steel handrails make the stairs a smooth and transparent props. While walking on them, people may feel like walking in the sky. The bare brick wall on the rear side of the stairs is kept and sprayed with white paint to create micro-comparison of new and old.
The numerous built-in bookcases are to meet the needs of the male host who loves to collect books. The wooden grid doors of the bookcases together with the ceiling form a virtual body which embedded into the internal space. “Grids” are scattered across every interior floors, create various behavior spaces, such as tea drinking, hospitality, reading and so on. The introduction of grids filters sight, lighting and views, through which enable the interior to get rid of interference and enjoy peace and tranquility.
- Any
- 2016



























