Wohnungsbau Ried Baufeld A

Ried, Niederwangen, 瑞士
照片 © Roman Keller

Das Baufeld A der Wohnsiedlung Ried ist das erste Baufeld und liegt somit am Eingang des Areals, daher nimmt es städtebaulich eine besondere Rolle ein. Zwei lange Volumen stehen versetzt zueinander auf dem Baufeld und bilden eine starke Zweiseitigkeit; jeder Baukörper hat eine Seite direkt am Grünen und grenzt auf der anderen an eine Begegnungszone, die das gesamte Baufeld erschliesst.

Die beiden Volumen weisen unterschiedliche Charakteristiken auf, so ist jenes an der Ringstrasse ein Vermittler zwischen den umliegenden Gebäuden und akzentuiert den Eingang zur Siedlung, während der zweite Baukörper etwas abgewinkelt ist und als Haus am Waldrand gelesen wird.

Dank der Ost-West-Ausrichtung können im Grundriss die Wohnbereiche beidseitig ausgebildet werden, wodurch die unterschiedlichen Qualitäten der Umgebung zum Wohnerlebnis beitragen. Die Idee kommt direkt aus dem Masterplan: Jeder wohnt am Grünen. Neben dem Blick in die Weite bietet sich den Bewohnern auch die Aussicht auf die Begegnungszone des Baufelds mit seinen gemeinschaftlichen Quartierfunktionen.

照片 © Roman Keller
照片 © Roman Keller
照片 © Roman Keller
照片 © Roman Keller
照片 © Roman Keller
Situation
图纸 © Ruprecht Architekten & Hildebrand
Schwarzplan
图纸 © Ruprecht Architekten & Hildebrand
照片 © Roman Keller
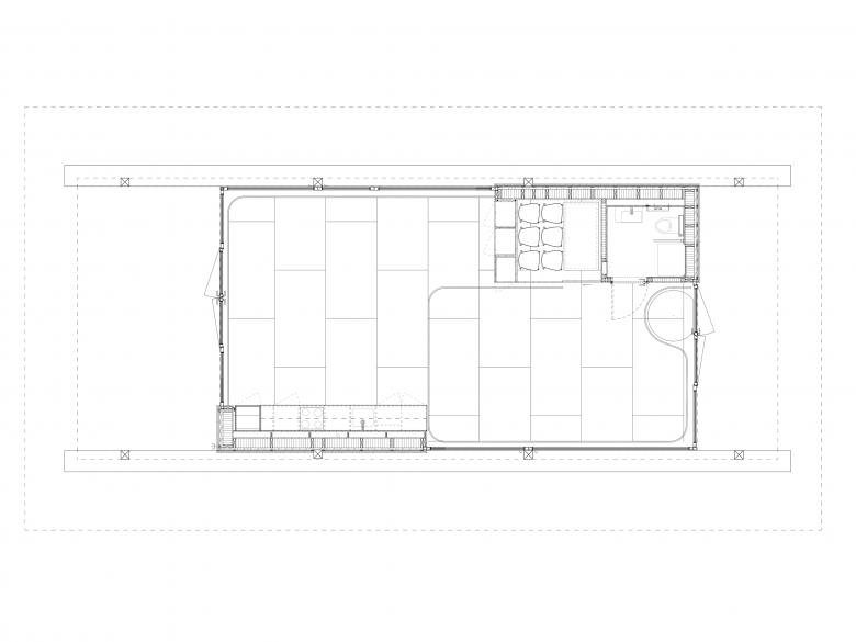
Obergeschoss
图纸 © Ruprecht Architekten & Hildebrand
Grundmodul
图纸 © Ruprecht Architekten & Hildebrand
Materialisierung Wohnungen
图纸 © Ruprecht Architekten & Hildebrand
照片 © Roman Keller
Ansicht
图纸 © Ruprecht Architekten & Hildebrand
照片 © Roman Keller
照片 © Roman Keller
图纸 © Ruprecht Architekten & Hildebrand
图纸 © Ruprecht Architekten & Hildebrand
图纸 © Ruprecht Architekten & Hildebrand
图纸 © Ruprecht Architekten & Hildebrand
年份
2020
客户
Fambau Genossenschaft & Pensionskasse Gemeinde Köniz
In Zusammenarbeit mit
Hildebrand Studios AG

以下出品方的其他项目 Ruprecht Architekten 

Hochhäuser Neumatt
Spreitenbach, Aargau, 瑞士
Regionale Sportanlage RSA
Sargans, 瑞士
Masterplan Ried
Ried, Niederwangen, 瑞士
Besucher- und Therapiezentrum, Herisau
Herisau AR, 瑞士
Universität Miséricorde
Fribourg, 瑞士