23 dwellings
Béthune, 法國
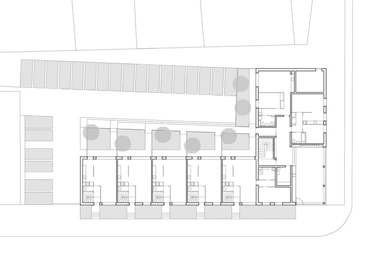
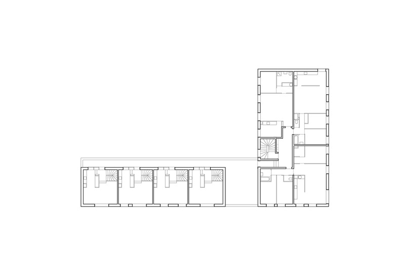
The project is situated in the district of Mont-Liébaut, in the outskirts of Béthune, in a district registered on the program of the National Agency for the Urban Renovation (ANRU). This project groups together 23 ‘semi-collective’ social housing units. The inspiration for the design came from research into new qualities developed at the interface between the individual and the collective: a sustainable lifestyle combined with the advantages of individual housing. We tried to create a unique building with very different typologies: individual housing with garden, penthouse duplex with shared terrace, apartment with garden on the groundfloor and panoramic dwellings, ranging from the simplex to the triplex, with terraces offering views of the Belfry of Béthune and over coal tips to the Horizon.The building is located at the angle of two urban axes, boulevard de Hollande and boulevard de Varsovie. To put in coherence the public place, it respects the alignments on street and marks the angle by an extra height. It presents cuts which give rythm to the facade and create private and shared terraces. Five “running through” duplex houses in the groundfloor, and four duplex on a passageway in the 2nd floor take place as individual houses along the boulevard de Hollande. Along the boulevard de Varsovie take place “collective dwellings”, multi-directed simplex up to the 2nd floor and five triplex apartments with double-heights in the highest floors.
We attentively drawn the “entrance” sequences. The groundfloor dwellings are slightly above the level of the street to protect a certain intimacy. It is used as a pretext to create a small landscape project in the courtyard. The front doors of individual houses integrate bells and mailboxes while assuming the protective function of canopies. Elements are subtlely graded from public to private : parking, staircases, joineries... The hall receives specific treatments as many qualitative common spaces are crossed to arrive ‘at home’.Windows and bricks have been drawn and built with concern. Facades are insolated double walls, concrete-insolation-brick. The sliding joineries are made of movingui. They are maintained in overhang of the facades by massive wooden pre-frames fixed to the concrete wall. Every joinery constitutes a space in itself. Their projection towards the outside allows to enlarge the space of the dwellings and to animate facades with the movement of shadows. The wide proportion of glass surface and the use of light railings allow to propose particularly bright and qualitative appartements.
Bricks are very present in Pas-de-Calais. By opting for this material, we aimed at a good integration of the building in its context, while reinterpreting the traditional approach with a contemporary touch brought by the unusual color and implementation. The imperfections give life to the facade with an infinity of light variations. The sky reflects on the facade, which subtly changes its color according to time and weather.













