The Tower of Sparkle
Die „Lange Nacht der Architektur“ ist eine alljährlich in München stattfindende Veranstaltung, in deren Rahmen Architekturbüros besucht werden können, sich neue Gebäude der Öffentlichkeit präsentieren und Konferenzen sowie andere Events mit Bezug zur Architektur organisiert werden.
Das „HighRise one“ ist ein Hochhaus mit 17 Stockwerken, welche ausschließlich mit Büroflächen belegt sind. Noch vor Fertigstellung des Gebäudes wurde von den Architekten und dem Bauherrn der Kontakt mit den Lichtplanern gesucht, um eine Lichtidee für die Nacht am 19. Januar 2017 zu entwickeln. Da das Bauwerk bereits mit einer Fassade verkleidet, der Innenraum aber noch leer und roh belassen war, bot es ideale räumliche Bedingungen, um eine besondere Lösung zu realisieren, sowohl für die „Lange Nacht“ als auch die PR-Arbeit für den Verkauf des Gebäudes.
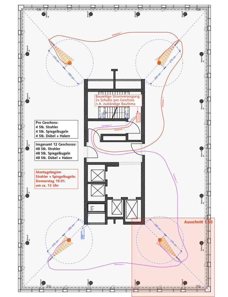
Die Idee bestand darin, das Hochhaus mit Licht zu füllen, so dass die gesamte Struktur glitzernd und wie mit Mineralwasser gefüllt erscheint. 48 synchronisierte, rotierende Spiegelkugeln verwandeln das Gebäude in eine urbane Lichtskulptur.
Auf jedem Geschoss sind vier Kugeln an Deckenhaken montiert und schweben dicht über der Bodenplatte, so dass deren tanzende Reflexionen auf den Deckenplatten die Wahrnehmung aus der Fußgängerperspektive prägen. Das dynamische Zusammenspiel der übereinander geschichteten Ebenen verwandelt die leere Hülle des „HighRise one“ in ein magisches, temporäres Lichterlebnis für Passanten und Besucher der „Langen Nacht“.
Fläche
7200 qm
Lichttechnik
Georg Veit Lichtdesign, München
Film
Felix Hentschel, Markus Valley
Vogl & Hentschel Filmatelier GbR
- 年份
- 2017
- Project Status
- 已建造
- Architects
- Steidle Architekten




