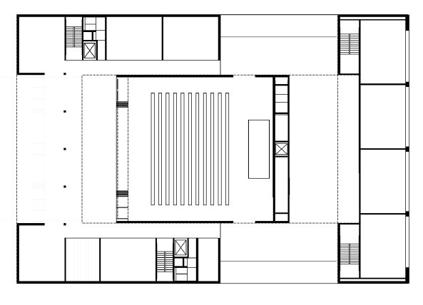
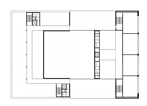
Hörsaal- und Institutsgebäude
Das neue Hochschulgebäude definiert einen markenaten Eckpunkt an der Kreuzung der internen Universitätesachse mit dem Grünbereich zwischen Universität und Fachhochschule. Es ist so platziert und organisiert, dass die Nord-Süd-Achse zur Stadt - mit dem Durchblick durch das Gebäude und die ttransparente Halle - freigehalten und thematisiert wird.
Für die geplanten Bauteilkonstruktionen des Gebäudes wurde ein spezifischer, auf die wärmeübertragende Umfassungsfläche bezogener, Transmissionswärmeverlust von H'Tmax=0,47W (m2K) ermittelt. Der gemäß des staatlichen Bauamtes Regensburg max. zulässige spezifische, auf die wärmeübertragende Umfassungsfläche bezogene Transmissionswärmverlust nach EnEV (2007) von H'Tmax=0,80 W(m2K) wurde eingehalten und sogar um 30% unterschritten. Desweiteren wurden Maßnahmen der regenerativen Energie in Form von Photovotaik eingesetzt.
- 年份
- 2011
- 客户
- Freistaat Bayern, vertreten durch das Staatliche Bauamt Regensburg
- Aufgabe
- Hörsaal- und Institutsgebäude der Unversität Regensburg sowie für das Institut für Immobilienwirtschaft
- Mitarbeiter
- Holger Kostmann, Therese Heidecke, Christian Schmitt, Sandrina Schliemann
- Wettbewerb
- 2006: 1. Preis
- Leistungen
- HOAI, LP 2-8









