Center for Free-Electron Laser Science (CFEL)
Am 17. Juni wurde in Hamburg auf dem Universitätscampus Bahrenfeld das „Center for Free-Electron Laser Science“ (CFEL) eingeweiht. Die drei beteiligten Partnerinstitutionen – Universität Hamburg, die Max-Planck-Gesellschaft und das Deutsche Elektronen-Synchrotron DESY – vereinen ihre Kompetenzen zu einem europaweit einmaligen Wissenschaftszentrum für die Forschung an und mit Lichtquellen der nächsten Generation. Laserforschung in heute unbekannte Dimensionen zu treiben bedarf eines architektonischen Äquivalents und so führt die aus den inneren Strukturen entwickelte Gebäudeform zu einer einprägsamen Architektur. Im Jahr 2007 konnte das Stuttgarter Büro hammeskrause architekten das prominent besetzte VOF-Verfahren für sich entscheiden.
Mit dem CFEL werden Grundlagen- und anwendungsorientierte Forschung im Bereich Physik und Chemie in einem internationalen Zentrum eng miteinander verzahnt. Über vierhundert Wissenschaftler aus unterschiedlichen Disziplinen und Forschungsorganisationen finden hier beste Arbeitsbedingungen in einem anregenden Umfeld von Interdisziplinarität und Internationalität.
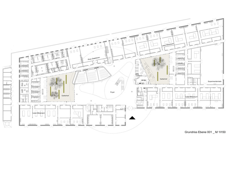
Raum für Kommunikation und interdisziplinären Wissenstransfer – Im CFEL-Neubau sind auf rund 8.500 Quadratmetern hochinstallierte Labore, Büros unterschiedlicher Struktur und Größe sowie Meeting-Zonen und Orte für informelle Kommunikation so angeordnet, dass eine kreativitätsfördernde Arbeitsatmosphäre entsteht. Ein lichtes Foyer verbindet über vier Geschosse die unterschiedlichen Funktionsbereiche miteinander. „Zur Zeit findet ein Paradigmenwechsel hinsichtlich der Kommunikation in Forschungsgebäuden statt“, erläutert Markus Hammes von hammeskrause architekten. „Raum für Kommunikation wird nicht länger als überflüssiger Luxus angesehen, sondern als notwendiger Bestandteil eines nachhaltigen Gebäudekonzepts.“ Im CFEL fördern offene Raumstrukturen die Kommunikation und begünstigen den interdisziplinären Wissenstransfer zwischen den Forschergruppen.
Zwei Elemente bestimmen den Neubau – Auf Grund der speziellen baudynamischen Anforderungen an die schwingungs-entkoppelten physikalischen Messräume werden der Labor- und der Bürobaukörper formal und thematisch unterschiedlich behandelt. Ein massiv verklinkertes Sockelgeschoss bildet die Basis für den runden, dreigeschossigen Bürobaukörper mit einem Durchmesser von rund 57 Metern und einer leichten und transparenten Fassade aus linearen Fensterbändern. Die Lasermessräume für Experimente im Femtosekundenbereich liegen im Erdgeschoss auf rund anderthalb Meter dicken Fundamentplatten um erschütterungsfreie Impulse von einem billiardstel Teil einer Sekunde zu ermöglichen. Im runden Bürobau gruppieren sich in den Obergeschossen Arbeitsräume für die individuelle, konzentrierte Arbeit und gläserne Zellenbüros um offen gestaltete Arbeits- und Besprechungsbereiche.
Haushohes Foyer mit Oberlicht aus ETFE-Folienkissen – Um die lichte Eingangshalle und zwei zentrale Gartenhöfe sind drei Seminarräume, 24 Laser-Messräume und eine Cafeteria angeordnet. Das haushohe Foyer im Zentrum des Gebäudes zeichnet sich durch seine besondere Geometrie aus: um ein sphärisches Dreieck rotieren horizontale Büroebenen, die über brückenartige Treppenläufe vertikal verknüpft werden und vielfältige Blickbezüge von einer Ebene zur anderen zulassen. Nach oben öffnet sich das Atrium über ein Oberlicht mit einer filigranen Stahlkonstruktion aus Rundrohrprofilen gefüllt mit mehrlagigen Folienkissen aus Ethylen-Tetraflurethyl (ETFE).
Tag der Architektur 2013 in Hamburg – Mit dem CFEL-Neubau sind optimale Räumlichkeiten für die Wissenschaft entstanden, es werden aber der interessierten Öffentlichkeit auch Einblicke in die Spitzenforschung ermöglicht. Am bundesweiten Tag der Architektur 2013 vom 29. bis 30. Juni bietet die Hamburger Architektenkammer eine Führung mit Markus Hammes durch das CFEL an. Anmeldungen über die Architektenkammer Hamburg.
Bauherr
Freie und Hansestadt Hamburg
Behörde für Stadtentwicklung und Umwelt BSU
Nutzer
Universität Hamburg
Max-Planck-Gesellschaft
Deutsches Elektronen-Synchrotron DESY
Architekt
hammeskrause architekten bda
Verhandlungsverfahren
Juni 2007
Hauptnutzfläche HNF
8.570 m²
Bruttogrundfläche BGF
16.340 m²
Bruttorauminhalt BRI
73.925 m³
Gesamtbaukosten
40,3 Mio. € brutto
Planungsbeginn
August 2007
Baubeginn
Dezember 2008
Fertigstellung
September 2012
Planung und Bauleitung
hammeskrause architekten
freie architekten bda
Projektteam
Markus Hammes, Jürgen Naverschnigg, Rainer Jöst, Andreas Kost-Steinbach, Samuel Vormschlag, Titus Giefers, Thomas Großmann
- 年份
- 2013
- Project Status
- 已建造












