Sport- und Versammlungshalle Grossbühl
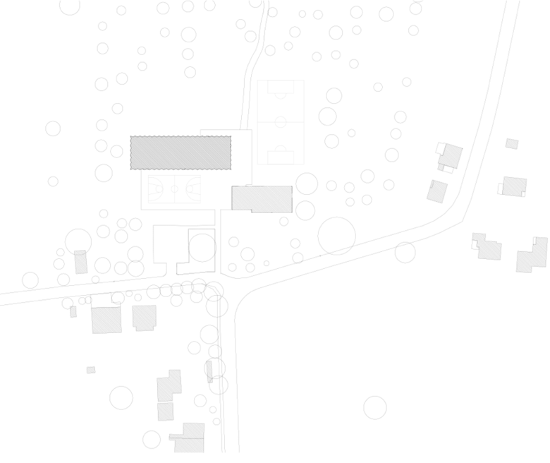
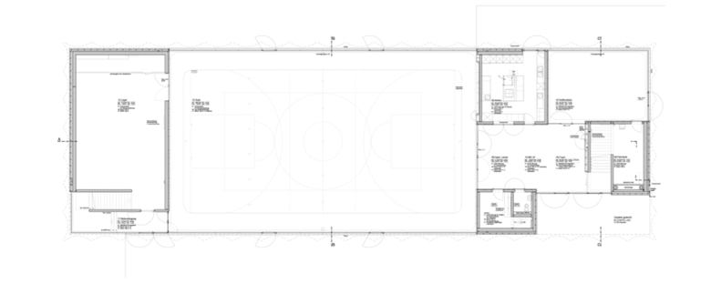
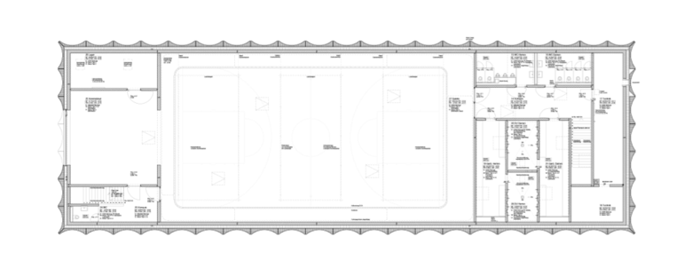
Nach dem Wettbewerb wurde 2008 auf einem redimensionierten Raumprogramm ein neues Vorprojekt erarbeitet. Auf den Erhalt der bestehenden Halle wird verzichtet. Ein neues Volumen ermöglicht optimale Synergien zwischen der Schul- und Vereinsnutzung bei grösst möglicher Kompaktheit. Zudem kann durch das Gebäude die städtebauliche Figur der Anlage, sowie der Bezug zum sich öffnenden Landschaftsraum geklärt werden. Die Hauptnutzungen werden als Leerstelle zwischen den geschlossenen Nebenraumkörper formuliert. Sie bilden eine fliessende Raumfigur welche sich stark in den Landschaftsraum öffnet. Das Gebäude welches primär als Sporthalle genutzt wird, dient ebenfalls als Veranstaltungsraum (Gemeindeversammlungen, Theatervorstellungen, etc.) welcher unterschiedliche Raumatmosphären benötigt. Ein sich in die Sporthalle einschreibende allseitige Gallerie mit Vorhang, welcher nach Bedarf ein Hallenfutteral bildet, steht dem Nutzer als individuell einsetzbares Element zur Veränderung der räumlichen Fassung des Innenraumes zur Verfügung. Die raumbegrenzenden Elemente des Obergeschosses bilden gleichzeitig die geschosshohe Tragstruktur welche auf den Körpern des EGs liegend frei überspannte Fassadenteile ermöglicht und zu einer einprägsamen robusten Form des Gebäudes führt.
- 年份
- 2013
- 客户
- Gemeinde Rodersdorf


















