Mensa der Martin-Luther-Universität
Der Campus, das Feld – Auf dem Freifeld der ehemalige Kasernenanlage an der Heideallee in Halle an der Saale sollen in den nächsten Jahren drei Neubauten für zentrale Einrichtungen der Martin – Luther - Universität realisiert werden. Die Weiterentwicklung des Masterplans geht von einer frei verteilten Anordnung von Neubauten auf dem Bereich der vorhandenen Freifläche aus, um hier zentralen Einrichtungen im Vergleich zur axialsymmetrischen Anordnung der ehemaligen Kasernengebäude eine herausgehobene Positionierung auf dem Campus zu geben. Auch die bereits in der Ausführung befindlichen Bauten wie Versuchsgewächshaus und des Hörsaalgebäude werden integriert und somit zu gleich-berechtigten Teilen des Bauensembles werden. Das Feld (lat. Campus) ist somit bestellt.
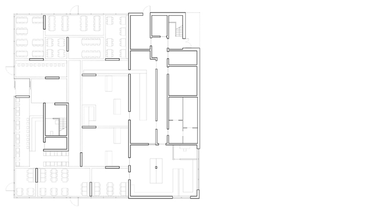
Die Mensa, der Tisch – Für die Mensa wird ein quadratischer zweigeschossiger Baukörper vorgeschlagen, welcher durch die optische Geschoßteilung hohe Signifikanz und Verwandtschaft zu seiner Umgebung erhält. Der Wunsch nach Abtrennbarkeit von Mensa, Cafébar und Abendgaststätte stellt eine hohe Anforderung an Funktionalität der Grundrisse und Wegeführung innerhalb des Gastbereiches dar. Im vorliegenden Entwurf ist es gelungen, sämtliche Funktionen über einen zentralen Eingang zu erschließen und die Anbindung an den Küchenbereich abgestimmt auf den individuellen Bedarf der einzelnen Einrichtungen zu organisieren. Die Vorgabe, die Nutzungsbereiche Mensa, Cafébar und Abendgaststätte mit individuellen Aufenthaltsqualitäten auszustatten, möchten wir mit der Frage nach dem geeigneten Raum kombinieren. Die Atmosphäre von individueller Aufenthaltsqualität für jeden Tisch und Bereich innerhalb eines Großraums findet man im Bereich der Gastronomie überzeugend in den Ratskellern und Kneipen in historischen Gewölben. Diese Typologie aus individuellen Raumsegmenten, die sich zu einem gestalterischen Ganzen addieren, wird im vorliegenden Entwurf in eine moderne Lösung übersetzt. Wie schon bei den Gewölbekellern übernehmen die raumbildenden Elemente gleichzeitig die Statik des Gebäudes. Unterstützendes Tages- und Kunstlicht setzt je nach Tageszeit und Nutzungsart die Raumsequenzen „in Szene“ und sorgt somit für die angemessene Stimmung in den Räumen. Der Tisch (lat. Mensa) ist somit bestellt.
Aufgabe
Neubau der Mensa auf dem Campus Heide-Süd der Martin-Luther-Universität
Bauherr
Studentenwerk e.V., D
Halle an der Saale
Verfahren
Wettbewerb 2009
LP gem. HOAI
1-9
BGF | BRI | HNF
1.350 qm | 5.490 cbm | 830 qm
Projektkosten
4,98 Mio €
Planungszeit
2009 – 2010
Bauzeit
2010- 2011
Ausschreibung + Bauleitung
zoppelt architects, D - Halle
Tragwerksplanung
Ingenieurbüro Erz + Partner, D- Halle
TGA
Feimann Engineering GmbH, D- Erftstadt
Raumakustik
ISRW Klapdor GmbH Institut für Schalltechnik, D - Düsseldorf
Landschaftsplaner
TOPOTEK 1 Gesellschaft von Landschaftsarchitekten mbH, D - Berlin
Team gs : a
Prof. Gernot Schulz, Raphaella Burhenne de Cayres, Ufuk Celik, Gudrun Warnking, Fabienne Fouquez, Andre Zweering
Fotografie
Rainer Mader
- 年份
- 2011







