Rapperswil Lido Schwimmbad
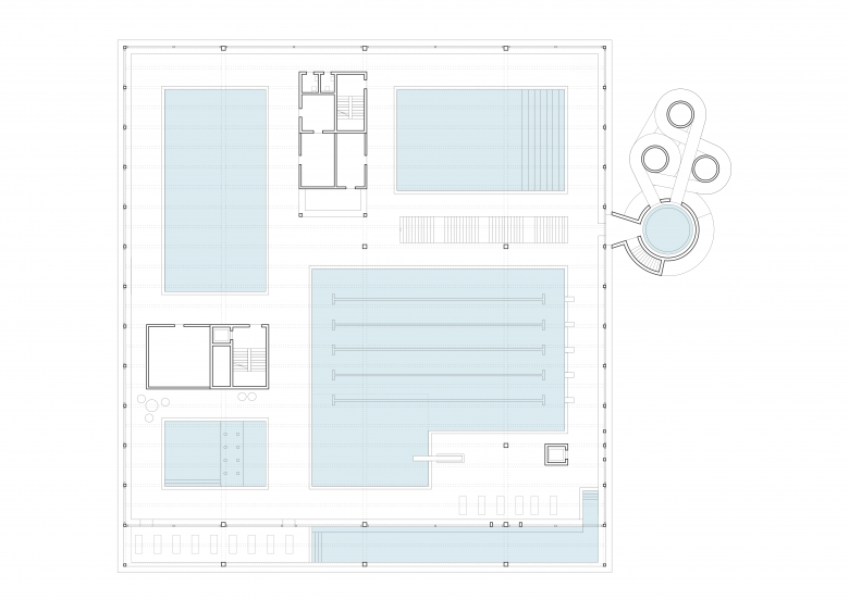
Das kompakte Gebäude des Hallenbades auf der norwestlichen Ecke des Grundstückes überlässt dem Freibad einen grosszügigen, nach Südosten und Südwesten orientierten Freiraum bis zum See: der neue Lido. Die im Masterplan definierte Zugangsachse wird als Esplanade ausgebildet - als breiter aber gefasster Raum zwischen dem Schwimmbad und der Eishalle. Es entsteht eine attraktive Eingangssituation für das Schwimmbad und ein attraktiver Zugang von der Oberseestrasse. Die Esplanade kann später bis zum See ausgebaut werden. Das Erdgeschoss des Neubaus öffnet sich auf allen Seiten und verbindet sich mit den zugehörigen Aussenräumen.
- 年份
- 2023
- Project Status
- 正在施工
- Bauherrschaft
- Kanton St.Gallen
- Landschaftsarchitektur
- LINEA landscape architecture
- Baumanagement
- BGS & Partner Architekten AG
- Bauingenieur Holzbau
- Pirmin Jung Schweiz AG
- Haustechnik
- COP² AG
- Bauphysik & Akustik
- BAKUS Bauphysik & Akustik AG
- Brandschutz
- Pirmin Jung Schweiz AG
- Wettbewerb
- 2023
- Ort
- Projektwettbewerb Schwimmbad Lido, Rapperswil
- Programm
- Garderoben, Duschen, Toiletten, Freibad, Hallenbad, Wellness







