Personalhaus Vogelsang Zürich

© Dominique Marc Wehrli
© Dominique Marc Wehrli
© Dominique Marc Wehrli
© Dominique Marc Wehrli
© Dominique Marc Wehrli
© Dominique Marc Wehrli
© Dominique Marc Wehrli
© Dominique Marc Wehrli
© Dominique Marc Wehrli
© dja
© dja
© dja
年份
2013
Project Status
已建造
Auftraggeber
Kanton Zürich
Landschaftarchitektur
Berchtold. Lenzin
Kunst am Bau
Karim Noureldin
Wettbewerb
2010, 1. Preis
Aufgabe
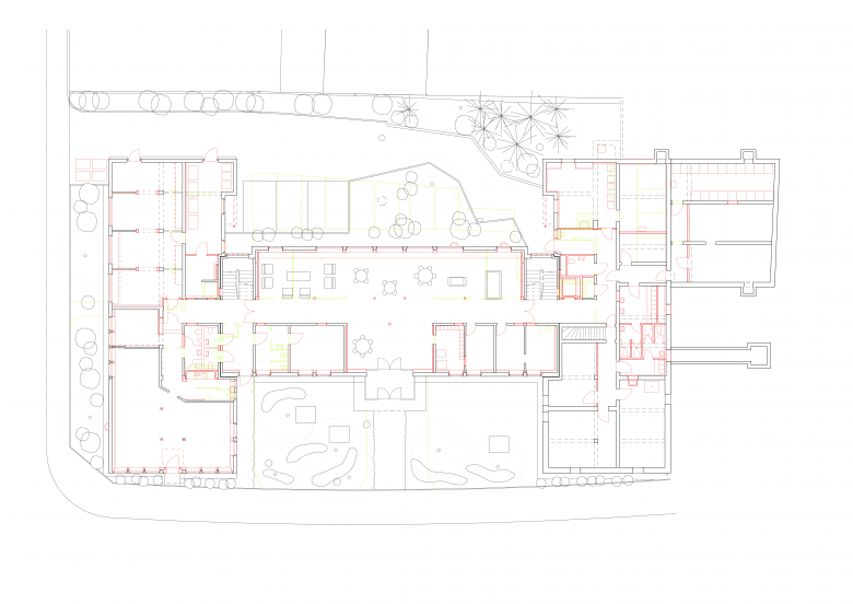
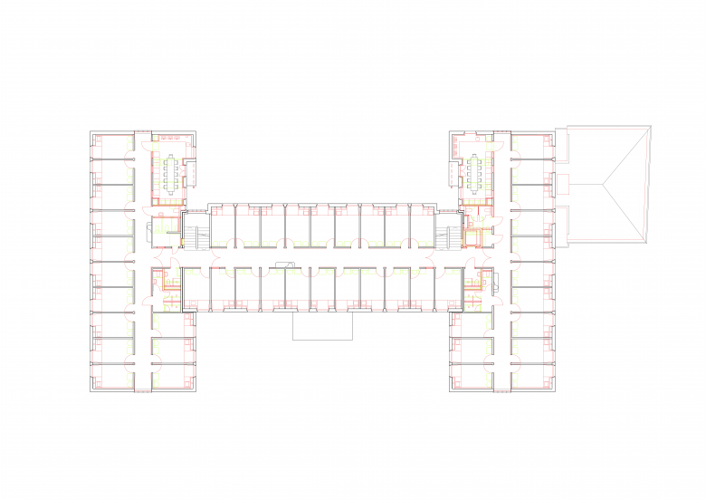
Grundlegende Sanierung des Personalwohnhauses für das Universitätsspital Zürich. Das 1955 von den Architekten Burzi + Hauenstein erstellte ehemalige Schwesternhaus ist ein erhaltens­werter Zeuge der Zürcher Architektur der 50er Jahre.
Programm
134 Zimmer, Sanitärräume, Freizeitraum und Gemeinschaftsküchen, Büros. Umsetzung behördliche Auflagen: Gebäudehülle, Asbestsanierung, Erdbebensicherheit, Brandschutz, Hindernisfreiheit.

以下出品方的其他项目 Derendinger Jaillard Architekten 

Gemeindehaus Münsingen
Münsingen, 瑞士
Kantonsschule Ausserschwyz Nuolen
Nuolen, 瑞士
Bahnhof Zürich Altstetten
Zugang Bahnhof Herrliberg / Feldmeilen
Collège Principal de Pully