Alterssiedlung Feldblume Zürich

© farblabor
© farblabor
© farblabor
© farblabor
© farblabor
© farblabor
© farblabor
© farblabor
© dja
© dja
© dja
年份
2010
Project Status
已建造
Auftraggeber
Stiftung Alterswohnungen SAW
Landschaftsarchitektur
Studio Vulkan
Baumanagement
Bosshard und Partner Architekturbüro
Wettbewerb
2007, 1. Preis
Aufgabe
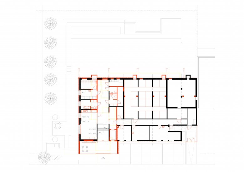
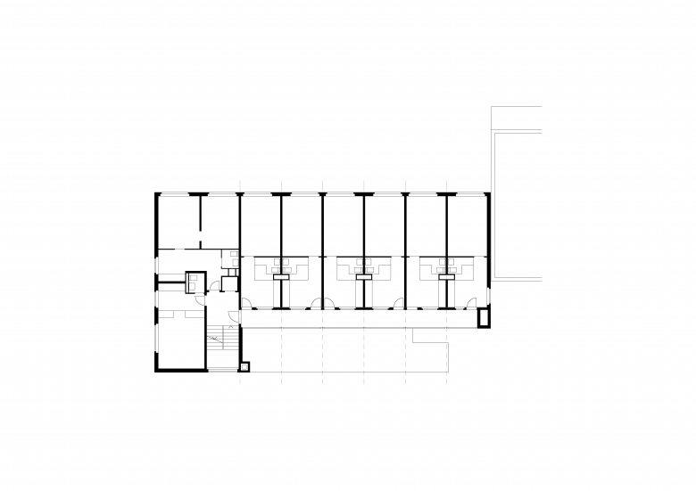
Gesamtsanierung der Alterssiedlung aus den siebziger Jahren mit Wohnungzusammenlegungen. Neue Gemeinschaftsbereiche. Balkone.
Programm
20 behindertengerechte 2.5 und 3.5 Zimmerwohnungen, Gemeinschafts- und Spitexraum, Wohlfühlbad, Hauswart-Werkstatt. Umsetzung behördlicher Auflagen: Gebäudehülle, Asbestsanierung, Erdbebensicherheit, Brandschutz, Hindernisfreiheit.

以下出品方的其他项目 Derendinger Jaillard Architekten 

Gemeindehaus Münsingen
Münsingen, 瑞士
Kantonsschule Ausserschwyz Nuolen
Nuolen, 瑞士
Bahnhof Zürich Altstetten
Zugang Bahnhof Herrliberg / Feldmeilen
Collège Principal de Pully