Hort und Nachmittagsbetreuung Löwenfeldschule
Linz wächst rasant und wird vorhersehbar auch die nächsten Jahre noch weiter zulegen. Gerade der Anteil an kleinen Linzerinnen und Linzern steigt überproportional. Allein im letzten Jahr hat die Stadt einen wahren Babyboom erlebt. Darum braucht es jetzt sofort Schulen und Horteinrichtungen, die auch noch rasch und unkompliziert erweitert werden können.
Und genau das ist das Besondere am Projekt. Mit ohne ist schon für die nahe Zukunft entworfen! Ohne weiteres und in kurzer Zeit können zu günstigsten Kosten zwei in Holz vorgefertigte Geschosse einfach darauf gesetzt werden. Sollbruchstellen sind vorhanden. Wachstum also sofort „miteingebaut“.
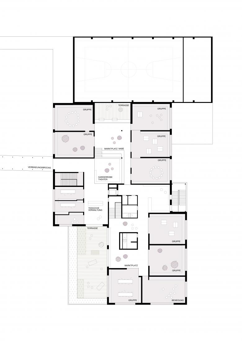
Der Neubau ist möglichst flächensparend so gesetzt, dass zum Altbau hin eine Spielstraße entsteht. Geschützt zwischen den zwei Häusern ist hier das Herz der Aussenanlage.
Im Inneren ist alles state of the art: Cluster sind um „Marktplätze“ herum angelegt, Räume werden mehrfach genutzt, es herrscht Offenheit und hohe Flexibilität. Unmittelbar zugängliche Terrassen und Außenräume ergänzen die Lernlandschaft. Diese Raumqualitäten entsprechen den aktuellen Forschungen und unterstützen als „3. Pädagoge“ die Lehrer und Lehrerinnen. Trotz möglichst fliessender Übergänge sind die Nachmittagsbetreuung (10-14 Jährige) und der Hort (6-10 Jährige) klar getrennt.
Die Anschlüsse an den Bestand sind simpel: an die Turnhalle wird unmittelbar angedockt, Resträume genutzt, zur bestehenden Schule entsteht eine gläserne Stahl-Holzbrücke direkt zur Bibliothek um diese auch am Nachmittag unkompliziert mitzunützen.
- 年份
- 2020
- Project Status
- 已建造
- Tragwerksplanung
- TRIAX Ziviltechniker GmbH
- Bauphyisk
- Enicon, Eco-Energy Consulting GmbH
- Elektrotechnik und Heiztechnik
- tbW Ingenierur Consult GmbH
- Landschaftsarchitektur
- Carla Lo Landschaftsarchitektur














