Neubau Analytik LVWO Weinsberg Staatliche Lehr- und Versuchsanstalt für Wein- und Obstbau
Der Neubau für die Analytik schafft Ersatz für die in die Jahre gekommenen bestehenden Laborräume. Als östlicher Auftakt der Campusanlage erfüllt das neue Analytikgebäude neben der Unterbringung zeitgemäßer Laborräume auch eine repräsentative Funktion. Der Neubau ist damit Aushängeschild des Staatsweingutes Weinsberg und gleichermaßen Gesicht zur Stadt.
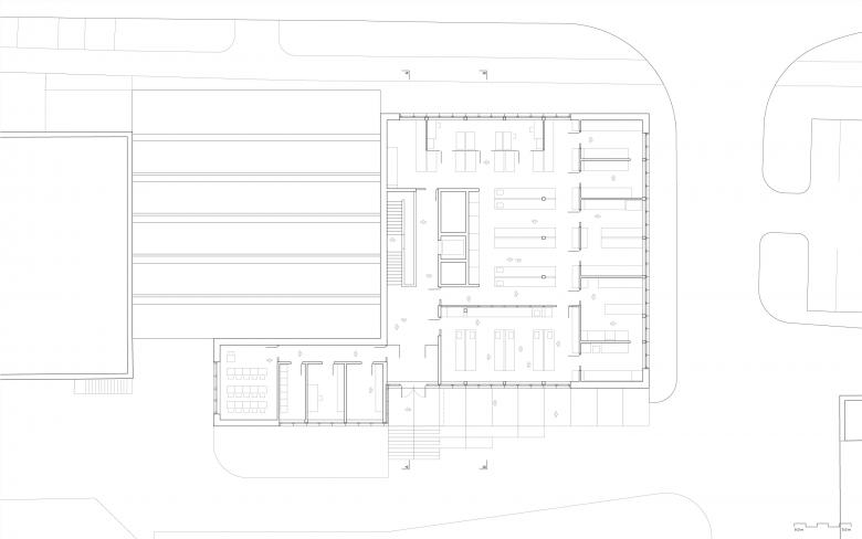
Das architektonische Konzept sieht eine klare Kubatur mit großzügigen Öffnungen vor, wobei sich die einzelnen Nutzungsbereiche in ihrer Höhenentwicklung abzeichnen und somit einen differenzierten Baukörper entstehen lassen. Durch die Verschränkung beider Körper entsteht ein überdachter Eingangsbereich mit vorgelagerter Treppen- und Sitzstufenanlage.
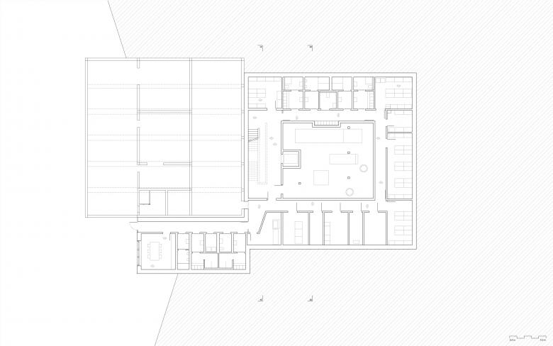
Dem Wunsch nach großzügigen zusammenhängenden Laborflächen mit maximaler Transparenz, und Übersicht wird der kompakte Baukörper gerecht. Herzstück des Neubaus bildet dabei das Hauptlabor mit integrierter Dokumentationszone. Glastrennwände und Türen stellen zu den angrenzenden Neben- und S1-Laboren Sichtkontakt sowie Außenraumbezug her. Ein Schwerpunkt der Tätigkeit an der Lehr- und Versuchsanstalt liegt in der Aus- und Weiterbildung, weshalb ein Schülerlabor und Schulungsräume das Raumprogramm der Analytik ergänzen.
In Anlehnung an das Thema Weinbau und dessen prägende Landschaften, nimmt die Gebäudehülle das Thema der im Weinbau so wichtigen Boden- und Gesteinsschichten auf. Die vorgehängte Klinkerfassade setzt sich zusammen aus Ziegeln im Dünn- und Normalformat, in zwei unterschiedlichen farblichen Abstufungen. Somit entsteht ein differenziertes Bild aus erdigen Farbtönen, die das geologische Thema aufgreifen und sich gleichermaßen gut in den Campus mit Bestandsbauten einfügen.
Im Bereich des Foyers ist die Konstruktion durch einen großen Anteil an Sichtbetonflächen erlebbar. Die sich abzeichnende horizontale Bretterschalung greif dabei Thema der Schichtung aus Fassade auf, und überträgt es in den Innenraum.
Die Wärme- und Kälteversorgung wird über die campusübergreifende Infrastruktur bereitgestellt. Den erforderlichen Luftwechsel im Laborbereich stellt ein Lüftungsgerät mit Kreuzstromwärmetauscher sicher. Der Neubau Analytik LVWO Weinsberg wurde als Pilotprojekt des Landesbetriebes Vermögen & Bau Baden-Württemberg vollständig mit der BIM-Methode (Building Information Modeling) geplant.



















