No Name Art Museum
Since a collection of Wu Dayu’s work might not be exhibited at this museum, the name of Wu Dayu Art Museum has been discontinued. We use No Name Art Museum only as a temporary measure. However, the design of this piece of architecture was very much inspired by him.
Wu Dayu
Wu Dayu (1903-1988) was a painter, educator, poet and considered the founding father of Chinese abstract painting. He was born in Yixing, Jiangsu, and went to France in 1922 to study oil painting and sculpture. After returning to China, he established the National Art Academy (now China Academy of Art) in Hangzhou along with Lin Fengmian and others and headed its Department of Western (oil) Paintings. Wu lost his teaching position in 1950’s and painted in a ten-square-meter attic at home until his passing.
Propensity of Abstraction
Wu’s art attempted to convey ‘Li’ (strength) and ‘Ning’ (serenity) through lines, shapes, and colors in his small postcard-size paintings, which inspired us to contemplate the potent power of the seemingly mute architectural space.
While his paintings spoke of movement as well as volatility, Wu’s poem, Jing Kang, portrayed vividly the dynamics and of architectural experience:
Shadow cheats on figure
Time laughs at space
With no sound and no trace
I come in and out of the darkness of time
Time
Wu led us to the exploration of the temporal dimension of architecture.
Can time be designed?
Borrowing French philosopher Francios Jullien’s book On Time for a theoretical guideline, we compared the times of China and Europe.
The classic Western time: The observer is outside time; time and space are separated; time is evenly paced, dividable, one directional, with beginning and end. Past and future are clearly defined but not present. This is the objective and measurable time.
The traditional Chinese time: The observer is inside time; time and space cannot be separated; time varies, is continuous and oncoming, without beginning and end. This time is always present and can be named as the subject and immeasurable time.
The instability and elasticity of Chinese time offers design possibilities.
The case of Bridge with Nine Bends: If a body of water can be crossed with 3 steps, with a Nine-Bend Bridge, it may take 27 steps, which means the time is 9 times longer, consequently the space feels much larger.
Perspective
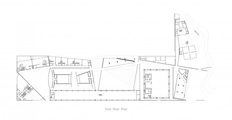
One-point perspective, a classical, static space-making device, is deployed and overlapped with the Chinese notion of time, to give the experience of this art museum a formal language: wedge-shaped spaces are stretched to achieve enhanced perspective in one direction and compressed in the other; thus, the temporal-spatial perception changes with every move of the visitor. It demonstrates the immeasurability of time and space and enriches the sensorial experience to the point where one may get lost and embark on a journey of discovery.
Space
The essence of an art museum is to provide a wandering experience. This art museum is intended to be a playground of space and time. Therefore, besides perspectival manipulation, we introduced the concept of “pure architectural space”: a series of outdoor or semi-outdoor spaces serving as transitions between programs. They are configured to possess dramatic tensions, intensifying the temporal and spatial dynamics during the journey through the architecture. The overall spatial structure of this building complex is arranged in Yuan (courtyards) and Jin (layers), generating a dialogue with the Chinese architectural.
Form
Similar to Wu’s paintings, paying attention to time-space experiences allows us a break away from static compositions, which means the formal relationship between stereoscopic volumes and planar elevations are dissolved. Hereto, the work of a Swedish architect, Sigurd Lewerentz, provided us with provocative precedents.
Structure
The structural system of this project is partly beamless concrete slabs with irregular-shaped columns and partly steel frames.
Material
Besides space, we also pay tribute in our design to the vernacular architectural traditions in Wuzhen, which is part of the broader Jiangnan (south of the Yangtze River) Region, in terms of material and color. Hence, using clay roof tiles on the wall surfaces as well as exposing concrete cast-on-site with wood formworks constitute a rich and subtle color scheme of black-white-gray.
At this point, the construction of landscape and interior of this building remain incomplete.
Project Info
Client: Zhejiang Yada International Health Ecologic Park
Location: Wuzhen, Zhejiang
Principal Architect: Yung Ho Chang
Project Team: Simon Lee, Wang Yue, Cheng Yishi, Li Xiangting, Wu Xia, Liu Yang, Chen Youyou, Hou Jiali
Site Supervision and Technical Cooperation: Hu Youbin
Structure & MEP: Tongji Architectural Design (Group) Co., Ltd (Dujing Architectural Design Institute)
Structure and Material: Reinforced concrete shear wall and steel structure
Building Area: 6159.59m2
Site Area: 124244.34m2
Footprint Area: 9152.7m2
Building Height: 4.3m-12.3m
Design Period: 2016
Incompletion Time: 2021
- Arquitectos
- Atelier Feichang Jianzhu
- Ano
- 2021















