Neubau Haus Siesta Hotel Artos
Interlaken, Suíça
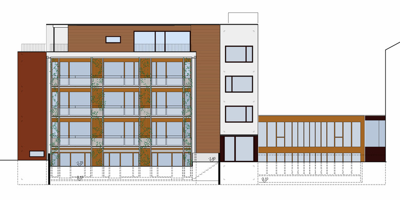
Das Haus Siesta bildet die Erweiterung zu den beiden bestehenden Bauten des Hotel Artos. Das Untergeschoss ist dreiseitig an die bestehenden Gebäude angebaut und weist ein Foyer sowie Seminar- und Gruppenräume auf. Im Erdgeschoss stellt der nach Norden geschwungene Korridor die Verbindung zu den Altbauten her.
Der Neubau ist rechtwinklig zu den beiden bestehenden Hotelbauten situiert. Die zum Hof hin orientierte Fassade übernimmt die gestalterischen Merkmale des Altbaus wie die Stahl- und Betonkonstruktion der Balkone und die farblos behandelten Holzfenster. Im Gegensatz zur Hoffassade ist der Aussenraum der Südzimmer als Loggia ausgebildet.
Die Zimmer des Attikageschosses sind mehrheitlich zweiseitig orientiert und weisen einen höheren Ausbaustandard auf. Durch die Fassadenverkleidung aus Holz hebt sich das Dachgeschoss vom verputzten, zweifarbigen Hauptbaukörper ab.
Der gewählte Minergiestandart garantiert einen Heizwärmebedarf, welcher deutlich unter dem gesetzlich vorgeschriebenen Wert liegt. Dies wird vorwiegend durch die sehr gut gedämmte Gebäudehülle und die Komfortlüftung in den Hotelzimmern erreicht.
ARGE mit Ernst Nievergelt Architekt, Zürich und Peter Gasser Architekturbüro, Interlaken (Bauleitung)
- Arquitectos
- Beat Nievergelt
- Ano
- 2006
Projetos relacionados
Revista
-
-
Building of the Week
A Loop for the Arts: The Xiao Feng Art Museum in Hangzhou
Eduard Kögel, ZAO / Zhang Ke Architecture Office | 15.12.2025 -













