Mehrfamilienhäuser Lerchenweg 6/8
Muri bei Bern, Suíça
Zwei neue Mehrfamilienhäuser hat das Architekturbüro Marazzi + Paul Architekten AG so in das Siedlungsgefüge des Ortsteils Gümligen, bei Bern, eingesetzt, dass sie mit der gebauten Umgebung vermitteln. Die beiden Bauten lehnen sich an das traditionelle Berner Bauernhaus an – sowohl als Mehrgenerationenhaus wie auch mit der durchlaufenden Balkonschicht, die den Aussenlaubengang als typisches Element der altbäuerlichen Substanz referenziert.
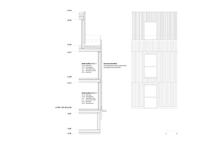
Ihre äussere Holzgestalt manifestiert die von Anfang an definierte planerische Prämisse von Naturnähe und Natürlichkeit. Und mit ihren individuell wie gemeinsam nutzbaren Aussenräumen erweitern sie die gegebene Landschaft geschickt.
Auf zwei Geschossen und einem jeweils zusätzlichen Attikageschoss entwickeln die insgesamt acht Eigentumseinheiten luftige, lichtdurchflutete Wohnwelten – diese zeichnen sich allesamt durch grosszügige, fliessende Wohn- und Essbereiche aus sowie eigene Sichtbezüge und Verknüpfungen zum Aussenraum. Aus dieser komplexen Anforderung haben sich die vielschichtigen Grundrisse hergeleitet, welche von der durchlaufenden Balkonschicht gegliedert werden.
Die beiden Mehrfamilienhäuser entwickeln das Siedlungsgefüge subtil, sorgfältig weiter – und nehmen dabei historische Elemente mit. Das Architekturbüro schafft damit einen Ort, der Traditionen neu interpretiert.



















