Umbau / Neubau Alterswohnungen Storchen

Im Zentrum des Gesamtkonzeptes stand die Neunutzung und Sanierung der Liegenschaft Storchen. Das markante Erscheinungsbild sollte erhalten werden, d.h. die neuen Ergänzungsbauten sollten die besondere Stellung des Storchens respektieren bzw. noch akzentuieren. Damit dies erreicht werden konnte, wurden die nicht erhaltenswerten und ohnehin stark sanierungsbedürftigen übrigen Gebäude auf dem Gesamtareal abgebrochen und der Storchen von den Anbauten befreit.

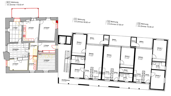
Anstelle des Ökonomiegebäudes wurde ein Neubau mit 9 Alterswohnungen erstellt. Der Storchen und diese Alterswohnungen sind miteinander erschlossen. Im Erdgeschoss des Storchens wurde ein Bistro eingebaut, im 1. und 2. Obergeschoss wurde jeweils eine 4 Zimmer-Wohnung eingebaut.

Die ganze Anlage wurde mit zwei Wohnhäusern mit je 8 Eigentumswohnungen ergänzt. Im Zentrum der Anlage wurde eine Unterflureinstellhalle für alle Häuser errichtet.

Ano
2007

Outros projetos por Oechsli + Partner 

Neubau 4 MFH im Güetli
Schaffhausen, Suíça
Umbau/Neubau Alterswohnungen
Dörflingen, Suíça
Fassadensanierung Staatsarchiv und Gerichtsgebäude
Schaffhausen, Suíça
Neugestaltung Cafeteria Cilag
Schaffhausen, Suíça
Umbau und Sanierung Vorstadt 13
Schaffhausen, Suíça