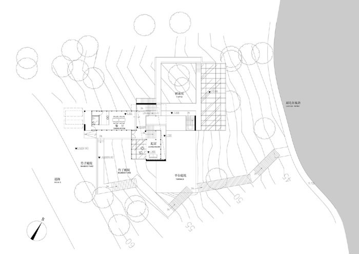
A Folded House - An Artist Studio, Nanjing
Project description
Architect: Doreen Heng LIU
Project Team: Jie-Bin HUANG, Dai Pu, Shao-Li LIN
Structure and Material: concrete & Steel structure
Site area: 3125sqm
A narrow and long piece of paper rolls, folds up and is becoming a house.
- Ano
- 2008








