Villa CP
Situé sur une parcelle en limite de la zone agricole genevoise, le projet se met en relation avec le paysage et le domaine bâti environnant: d’une part une zone de villas modernes des années soixante-dix et, d’autre part, des villas «traditionnelles» récentes. Tout en recherchant, par sa plasticité, une installation de type Land Art dans le site, le caractère sculptural de la forme atteste de la dichotomie entre la géométrie et la nature.
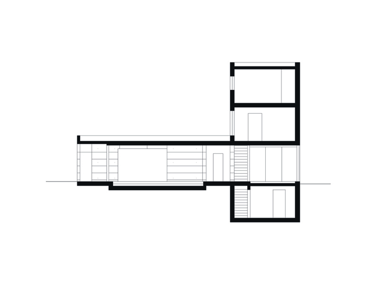
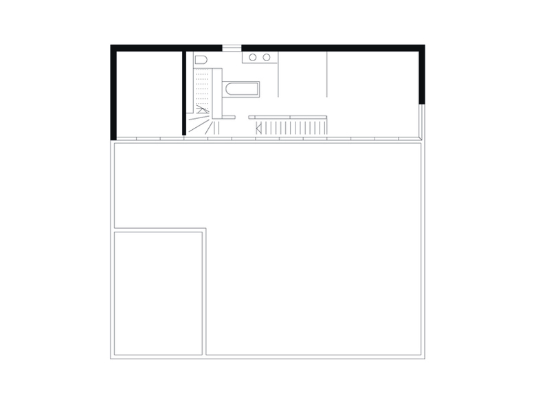
Le programme requiert la présence de deux logements dans le même volume: le premier pour une famille et le second, plus réduit, pour un parent célibataire. La typologie assez complexe s’inscrit dans la forme. Au rez-de-chaussée, un plan de base carrée, avec plusieurs parties «enlevées» –patio, cour, couvert – accueille les pièces de jour et permet de donner le maximum de profondeur de champ à l’espace domestique. Aux deux étages complémentaires, dans un étroit volume offrant des vues cadrées sur le paysage environnant, se situent les pièces de nuit pour les parents et les enfants.
La construction est en béton armé apparent, démontrant par cette présence tectonique, l’effort statique mis en œuvre, tout en conférant à l’objet sa plasticité. Les éléments de remplissage extérieurs sont réalisés en verre, en aluminium et en bois naturel. Des panneaux mobiles en verre opalescent autorisent des modulations de l’espace pour une adaptabilité de l’habitat et permettent de contrôler le rapport au voisinage.
La construction est en béton armé apparent, démontrant, par la présence de la matière, l'effort statique mis en œuvre pour atteindre la forme sculpturale de l'objet. Les remplissages sont en verre et aluminium. Les sols intérieurs et extérieurs sont en bois massif.
- Ano
- 2003
- Project Status
- Built
- Cliente
- Privé








