Logements à la campagne

Presinge, Suíça
Photo © yves andré

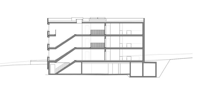
Le projet s’insère dans le creux d’une limite forestière qui borde la route de la Louvière à Presinge. Le terrain est en pente vers le Nord-Ouest. L’entrée au site se fait par l’aval de la parcelle sur une route interne qui dessert également un EMS situé en amont. La volumétrie proposée est compacte pour permettre les vues sur le contexte végétalisé de grande qualité. L’accès aux logements s’effectue par le chemin privé le long duquel s’installe la rampe d’accès au parking. Le sous-sol comprend les parkings, les caves, l’abri PC et les locaux techniques.

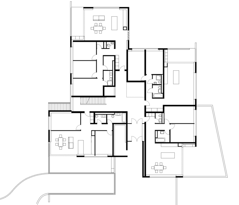
Le projet propose 12 appartements de 4 et 5 pièces possédant chacun une loggia sur l’angle (double orientation solaire possible), à l’exception de deux appartements du rez-de-chaussée, dont l’un se prolonge par une terrasse. La distribution verticale s’effectue par un escalier éclairé naturellement, qui permet de mettre de la distance entre les deux appartements au Nord et d’apporter de la lumière au centre du volume.

L’accès aux logements s’effectue par un hall généreux qui fait l’articulation entre la zone jour et la zone nuit et donne accès à un sanitaire de jour. L’entrée à la pièce de vie est lumineuse et s’ouvre sur un grand espace, dont l’angle est constitué par la loggia. Les chambres bénéficient d’un accès aux sanitaires communs alors que la chambre parentale jouit d’une salle de bains 'privée'.
Dans ce lieu d’une grande poésie, l’approche matérielle du volume revêt un caractère très important. Il s’agit ici de prévoir une expression simple, en symbiose avec le paysage boisé et en harmonie avec l’EMS de la Louvière. Les façades sont donc prévues en béton teinté avec de grandes ouvertures dont les menuiseries en bois naturel renvoient à la forêt enveloppant le site.

Photo © yves andré
Photo © yves andré
Photo © yves andré
Photo © yves andré
plan du 1er étage
plan du rez-de-chaussée
coupe longitudinale
élévation sud
élévation est
Ano
2017
Project Status
Built
Cliente
Privé

Outros projetos por meier + associés architectes 

Etude d'avocats
Genève, Suíça
École et logements
Genève, Suíça
Collège «la Planchette», 1er prix
Aigle, Suíça
École technique «CIFOM»
Le Locle, Suíça
Collège du Chaucey
Coppet, Suíça