Sanierung und Umbau der Burg Bachem
Wohnen für eine Weile – die Burg Bachem ist die größte und am besten erhaltene von drei historischen Burganlagen in dem südwestlich von Köln gelegenen Ort Bachem.
Die Spuren der Wasserburg reichen bis in das 13. Jahrhundert zurück. Im Zuge einer wechselvollen Geschichte war sie bis ins 18 Jahrhundert hinein immer wieder erheblichen baulichen Veränderungen ausgesetzt. Der danach in unmittelbarer Nähe einsetzende und über ca. 100 Jahre durchgeführte Braunkohletagebau bescherte der Burganlage zahlreiche Bauschäden. Diverse Zwischennutzungen mit schädigenden Eingriffen setzten dem Gebäude weiter zu.
Mitte der siebziger Jahre des vorigen Jahrhunderts entschied sich der Eigentümer, die gesamte Anlage wieder selber zu nutzen, sie dazu umfangreich zu sanieren und damit den weiteren Niedergang zu stoppen.
Gut vierzig Jahre später wurde das Hauptgebäude der denkmalgeschützten Anlage nun noch einmal umgebaut, um es den sich verändernden Lebensgewohnheiten und heutigen technischen Anforderungen anzupassen und den Betrieb der Anlage auf eine zukunfstfähige wirtschaftliche Basis zu stellen.
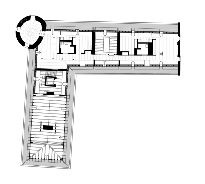
In das vormals für eine Grossfamilie konzipierte Gebäude wurden sieben Wohneinheiten implementiert. Sechs davon werden »auf Zeit«, also komplett möbliert und ausgestattet vermietet, eine ist der Nutzung durch den Eigentümer vorbehalten.
Unter Ausnutzung des denkmalgeschützten und räumlich überaus vielfältigen Bestandsgefüges wurden die Wohnungen nach dem Grundsatz entwickelt, nach dem eine gute Wohnung wie eine kleine Stadt funktionieren sollte: die Funktionsbereiche werden durch vielfältige Wege- und Blickbeziehungen durch die abwechselnd weiten und engen Räume der Wohnungen miteinander verknüpft.
Respektvoller und fachgerechter Umgang mit den vielfältig modellierten Wänden, Decken und Böden aus dem Bestand, präzise Fügung und Einfügung von neuen Bauteilen, sensibler Einsatz von Materialien und deren Oberflächenbearbeitung und sorgfältige Führung von Kunst- und Tageslicht charakterisieren die Räume in der Burg Bachem nach dem Umbau.
Unter dem Namen BurgBachemBoarding wird das Haus zu einer neuen Adresse für Menschen, die für eine Weile geschäftlich in der Stadt Köln zu tun haben oder einfach für mehrere Monate oder auch Jahre das Leben in der Metropole geniessen wollen. Sie finden dazu hier direkt vor den Toren Kölns ein einzigartiges Wohnambiente, das Ergänzung und Kontrast zum hektischen Stadtleben bietet: Grosszügige, helle, individuell und geschmackvoll ausgestattete Wohnungen zwischen alten Mauern inmitten von Wiesen und Wäldern.
- Ano
- 2018
- Equipa
- Felix Engelhardt, Henrik Reinhold













