Yellow River National Museum

Zhengzhou, China
Photo © Marcus Bredt

Museumsbau und Park von gmp fertiggestellt

Der Gelbe Fluss gilt als Wiege der chinesischen Kultur. Das von den Architekten von Gerkan, Marg und Partner (gmp) entworfene Yellow River National Museum am nördlichen Stadtrand von Zhengzhou thematisiert neben der kulturellen Bedeutung auch die landschaftsformenden Aspekte des rund 5000 Kilometer langen Stroms. Museumsneubau und Park zeichnen den mäandrierenden Flusslauf nach. Sie formen inhaltlich wie baulich die Brücke zwischen Natur und Zivilisation, wobei Architektur und Landschaft eins werden.

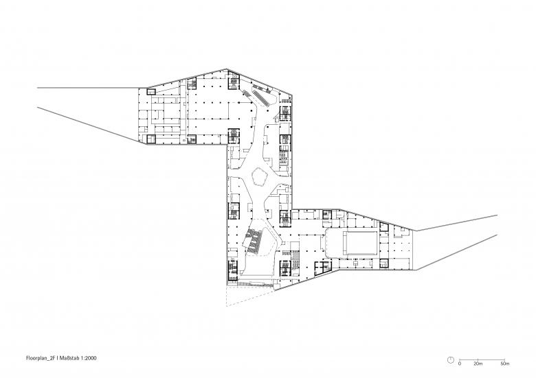
Das neue Museum bildet das Herzstück des „Yellow River National Cultural Park“ und verknüpft die angrenzenden Grünräume zu einer Einheit. Stromlinienförmig erhebt sich das Gebäude aus der hügeligen Landschaft am Flussufer. Als Fortsetzung des öffentlichen Parks führt die grüne Dachlandschaft zu einer 40 Meter hohen Aussichtsplattform mit Blick über den Gelben Fluss im Norden und die Stadt Zhengzhou im Süden. Sie bietet Bereiche für Picknick, Freilufttheater und Ausstellungen. Entlang geschwungener Wege können Besucherinnen und Besucher auf dem Dach die charakteristischen Landschaftsräume des Stroms mit ihren typischen Vegetationen erleben.

Der polygonale Baukörper quert sanft an- und absteigend einen Wasserlauf im Park. Am Kreuzungspunkt befindet sich ein organisch geformtes Atrium, das als Lichthof im Zentrum des Museums dient. Diese Öffnung kann zudem mit einem Wasservorhang inszeniert werden.

Die vertikal strukturierte Natursteinfassade des Gebäudes ist in modularer Bauweise aus vorgehängten, vorgefertigten Elementen konstruiert. Ihre reliefartige, rhythmische Struktur bildet abstrahiert den Verlauf des Flusses nach. Die öffentlichen Bereiche sind mit verglasten Lichtschlitzen versehen, während die Ausstellungsbereiche vor Lichteinfall geschützt sind. Drei großformatige Fenster an der Nordseite greifen das Motiv der Höhlen am Gelben Fluss auf und rahmen den Ausblick in die Landschaft.

Unter der höchsten Erhebung des Gebäudes im Süden liegt der verglaste Haupteingang zum Museum, der aus dem massiven Baukörper herausgeschnitten zu sein scheint. Fassaden- und Deckenbekleidungen aus gelblich schimmerndem Messing markieren diesen Einschnitt. Im Inneren setzen sich die Materialität und das äußere Erscheinungsbild fort: Gerundete Wände, die wie ausgewaschenes Gestein anmuten, und gelblich reflektierende Decken leiten in das Museum.

Wettbewerb: 2020, 1. Preis
Entwurf: Meinhard von Gerkan und Stephan Schütz mit Stephan Rewolle
Projektleitung: Sui Jinying, Zhai Chengcheng
Mitarbeit: Sebastian Beyer, Fan Yibing, Huang Han, Li Zhihui, Song Xiajun, Tang Zihong, Wang Jiaxin, Yang Li, Yuan Tao, Zhu Shiyou
Projektmanagement China: Li Ling, Wang Shihui
Partnerbüro in China: China Academy of Building Research (CABR)
Landschaftsarchitektur: gmp mit Rehwaldt Landscape Planning & Design (Beijing)
Lichtplanung: Conceptlicht
Fassadenberatung: SUP Beijing
Bauherrschaft: Henan Zhengzhou Development Culture and Tourism Investment
BGF: 100.300 m²
Ausstellungsfläche: 40.000 m²

Photo © Marcus Bredt
Photo © Marcus Bredt
Photo © Marcus Bredt
Photo © Marcus Bredt
Photo © Marcus Bredt
Photo © Marcus Bredt
Photo © Marcus Bredt
Photo © Marcus Bredt
Photo © Marcus Bredt
Photo © Marcus Bredt
Drawing © gmp · Architects
Drawing © gmp · Architects
Drawing © gmp · Architects
Drawing © gmp · Architects
Drawing © gmp · Architects
Ano
2025
Project Status
Built

Outros projetos por gmp · Architekten von Gerkan, Marg und Partner 

Stade de Luxembourg
Luxemburg, Luxemburgo
Hyparschale Magdeburg
Magdeburg, Alemanha
Erweiterungsneubau Headquarter Gebr. Heinemann
Hamburg, Alemanha
Lingang New City
Lingang New City, China
Isarphilharmonie/Halle E
München, Alemanha