ETH Zürich, Forst- und Landwirtschaftsgebäude

Strassenansicht
Photo © Tom Kawara

Erbaut von Gustav Gull, als Erweiterung eines Institutsgebäudes von J.J. Müller und O. Weber. Im städtischen Inventar schützenswerter Gebäude.
Renovation der Fassade und der Dachterrasse.
Reinigung und Reprofilierung des Kunst- und Natursteins,
Fensterertüchtigung oder -Ersatz mit Fensterfutter,
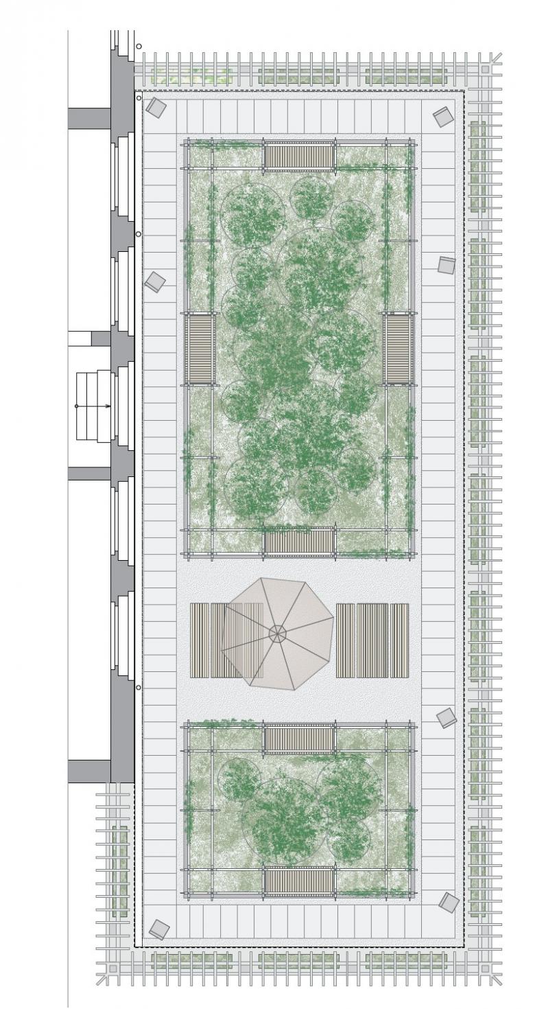
Absichtung und Neuaufbau der 100-jährigen Dachterrasse Süd.
Bauarbeit unter studentischem Betrieb und
unter Aufsicht der Denkmalpflege.

Dachterrasse
Photo © Tom Kawara
Dachterrasse
Photo © Tom Kawara
Ano
2017
Project Status
Built
Landschaftsarchitektur
Andreas Geser Landschaftsarchitekt, Zürich

Outros projetos por Felix Huber Architekten 

Renovation Alters- und Pflegezentrum
Wald ZH, Suíça
Umnutzung der Trotte zu Wohnhaus (Denkmalschutz-Objekt)
Wädenswil, Suíça
Mehrfamilienhaus Kirchgasse, Zustandsanalyse
Wohn- und Geschäftshaus
Zürich-Seefeld, Suíça
Renovation und Umbau Mehrfamilienhaus
Zürich-Seefeld, Suíça