Bildungscampus III Heilbronn 1. BA
Der Entwurf für den Hochschulcampus berücksichtigt die in den letzten Jahren getroffenen Entscheidungen zum Bildungscampus I, zur Erweiterung am Europaplatz und zum Neubau der Hochschule Heilbronn. Die Verfügbarkeit von Grundstücken, langfristige Entwicklungsziele und Vorgaben zum Ausbau der einzelnen Hochschulen bilden Parameter für vielfältige voneinander abhängige Entscheidungen, die als einzelne nur vorläufig sein können, um das Leitbild für den Hochschul-Campus Heilbronn zu definieren. Alle Aspekte müssen in einem intensiven Abstimmungsprozess mit der Stiftung, der Stadt und den Hochschulen hinterfragt und weiter entwickelt werden. Insofern ist das Konzept nicht ein fertiger städtebaulicher Entwurf sondern zeigt die Herangehensweise und die Haltung der Verfasser zu vielen Einzelaspekten auf dem Weg zu einer identitätsstiftenden Gesamtstruktur für den Bildungscampus Heilbronn.
Der städtebauliche Entwurf zielt auf einen optimal vernetzten Hochschulcampus, der die Qualitäten des Standortes weiterentwickelt, klare und attraktive öffentliche Räume bildet, die Anordnung der Hochschulen definiert und sowohl der Dualen Hochschule als auch der Hochschule Heilbronn eindeutige Adressen zuordnet. Dabei ist die abschnittsweise Umsetzung zu berücksichtigen und das Offenhalten langfristiger Entwicklungen. Bautypologie und Materialwahl sollen einerseits ein unverwechselbares Erscheinungsbild erzeugen, andererseits im Laufe der Campusentwicklung variiert werden können.
Bildungscampus III 1. BA
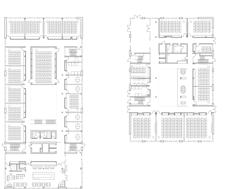
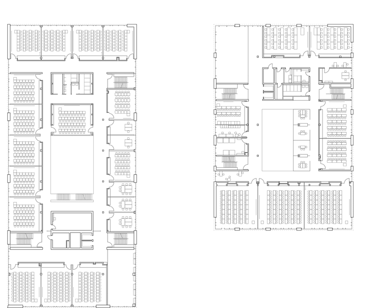
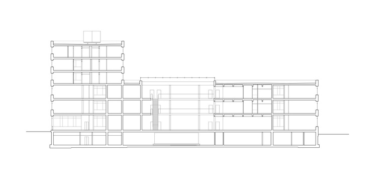
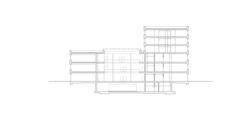
Aufbauend auf dem städtebaulichen Gesamtkonzept für den Bildungscampus III mit zwei großzügigen Freiräumen für zwei unterschiedliche Hochschulen errichtet die Dieter Schwarz Stiftung im 1. BA zwei Gebäude für die DHBW und die Hochschule Heilbronn. Beide Gebäude erhalten ein dreigeschossiges Atrium, um die Seminarräume angeordnet sind, sowie dreigeschossige Aufbauten mit den Räumen der Verwaltung der Fachbereiche. Dabei werden beide Gebäude bei aller grundsätzlicher Verwandtschaft im Detail und in der Farbigkeit differenziert ausgebildet.
Auftraggeber
DSS Dieter Schwarz Stiftung, Neckarsulm
Bruttogeschossfläche
18.550 m2
Brutto-Rauminhalt
86.430 m3
Leistungsbild
Lph. 1 – 8 HOAI
Fotografie
Roland Halbe
- Ano
- 2016















