Mehrfamilienhaus und Bürogebäude am Eiweg
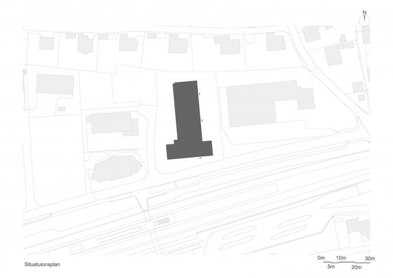
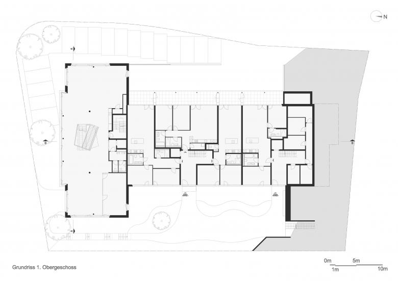
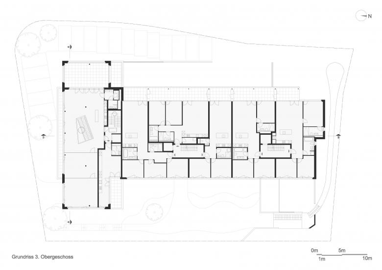
Die Anlage steht in unmittelbarer Nähe zum Bahnhof Gelterkinden. Sie umfasst ein Büro und 22 Wohnungen, welche 2023 fertiggestellt wurden.
Als Bauherr ermöglichte das Läckerli Huus Basel das grosse Bauvolumen.
Durch das Bürovolumen im Süden sind die Wohnungen vom Bahnlärm abgeschirmt und in ost-west Richtung orientiert. Der Wohnraum ist durch raumhohe Fenster beidseitig belichtet und bietet eine hohe Wohnqualität. Die Schlafzimmer befinden sich auf der Ostseite, während Wohnen, Essen und die großen Loggias auf die Westseite ausgerichtet sind.
Das Projekt greift auf die steile Hanglage und die unterschiedlichen Baugrundtypen auf drei verschiedenen Fundamentarten zurück.
Das Gebäude ist von aussen mit seiner Grösse und einzigartigen, goldigen Fassade bemerkenswert.
Die grossflächige Fassade wird durch die vertikale Faltung der Fassadenverkleidung aus perforiertem Aluminiumblech strukturiert. Im Wohnbereich wird die Verkleidung als Brüstung vor Fenstern und Loggias weitergezogen. Das fein gelochte Blech erlaubt eine Durchlässigkeit von innen, während die Faltung vor Einsicht schützt. Im Sonnenlicht erzeugt die glänzende Fassade ein Lichtspiel und lockert das Erscheinungsbild weiter auf.
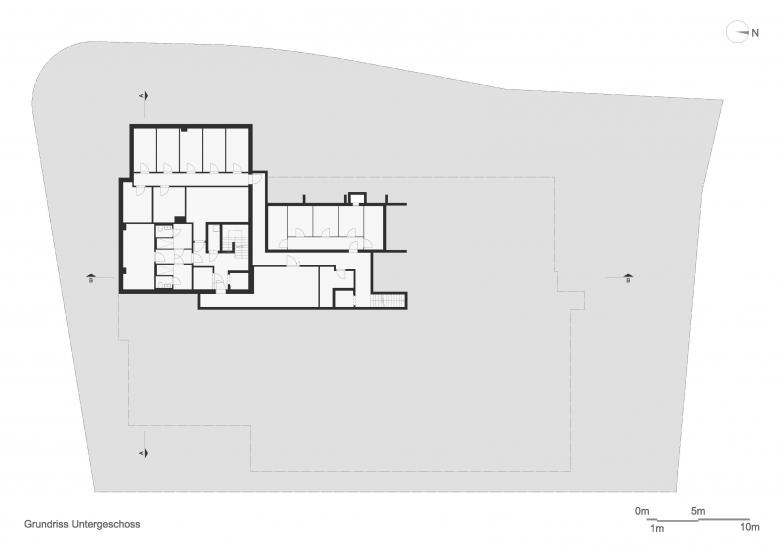
Die 1000 m² Bürofläche erstrecken sich über vier Geschosse und wurden von dem Laborplaner Tonelli AG aus Gelterkinden bezogen. Das Büro ist ohne feste Innenwände gestaltet und mit verschiebbaren Glastrennwänden nach Bedarf unterteilbar. Projektteams können flexibel in verschiedenen Zonen arbeiten und sind nicht an klassische Raumstrukturen gebunden.
Die Gestaltung des Büros ist dank der industriellen und schlichten Materialisierung zeitlos und ermöglicht es dem Nutzer, den Raum auszufüllen und beleben. Die Menge an natürlichem Licht erzeugt einen hochwertigen Arbeitsraum. Eine Akustikdecke und ein zentrales Lüftungssystem tragen zum guten Raumklima bei.
Eine grosszügige, offene Atriumtreppe verbindet alle vier Geschosse und fördert die Zusammenarbeit der verschiedenen Teams. Die Treppe ist durch ihre verwinkelte Form, Materialisierung und Farbgebung inszeniert und gibt dem Raum eine Orientierung.
Zeitraffer:
https://feed.yellow.camera/JJSSEHDP4
- Ano
- 2023
- Cliente
- Läckerli Huus






















