Zweiburgenschule Weinheim
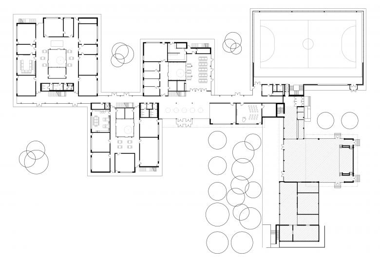
Ein Ensemble von Klassenhäusern erweitert den Bestand. Die Pavillonstruktur mit differenzierten Außenräumen ergänzt die bestehenden Kultureinrichtungen um ein zentrales Forum - dem neuen Herz des Schulzentrums.
Der Entwurf nimmt mit seiner Gliederung die Maßstäblichkeit und Körnung der Bestandsstruktur auf und ergänzt diese sorgsam um die Bausteine der Schule zu einem Gesamtensemble. An der Breslauer Straße wird das Ensemble um den Baukörper der Sporthalle im direkten Anschluss an das Bestandsfoyer des Kulturzentrums ergänzt. Gemeinsam mit dem Saal bildet sie so den baulichen Abschluss nach Norden und wertet die Eingangssituation des Kulturzentrum von der Breslauer Straße her auf.
Das zwischen der Sporthalle und dem Saal des Kulturzentrums gelegene Foyer wird um die Forumsnutzungen nach Süden erweitert und bildet das neue Herz und den Haupteingang der Schule. Die Unterrichtsräume gruppieren sich in versetzt angeordneten Pavillions um jeweils eigene grüne Höfe. Die Anordnung der Schulbaukörper erzeugen im Zusammenspiel mit dem Rolf-Engelbrecht-Haus ein vielfältig nutzbares differenziertes Freiraumangebot.
„Mit diesem Entwurf wird ein lebendiges und zukunftsweisendes Schulgebäude verwirklich, dass dem formulierten innovativen Ansatz voll gerecht wird.“ (Zitat Juryprotokoll)
- Jaar
- 2021











